Проект Річард – 134
| Загальна площа | 134 кв. м |
| Тераса | 31,5 кв. м |
Цей одноповерховий будинок загальною площею 134 м2 вражає свої сучасним зовнішнім виглядом. Комбінацією матеріалів зовнішнього оздоблення. Великими панорамними вікнами, які забезпечують максимальний доступ до природного світла та створюють відчуття єдності з навколишнім середовищем.
Особливу увагу наші архітекторі приділили розробці високого комфорту та зручності проживання в будинку за проєктом “Річард”. Наприклад, простора тераса з гриль-зоною стане ідеальним місцем для відпочинку з родиною та друзями. І вона ж виконує роль навісу для авто, що забезпечить захист вашого автомобіля від погодних умов.
Даний проєкт можна адаптувати під класичний фундамент будинку з СІП на ділянці без пагорба.
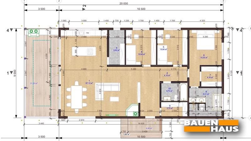
Планування СІП-будинку “Річард – 134”
Ширина – 20 м (з терасою)
Довжина – 9 м (без ґанку)

Телефон: