Проєктування будинків із СІП панелей
Бауен Хаус » Проєктування будинків із СІП панелей
Будь-яким будівельним роботам, незалежно від їх масштабу та технології, передує розробка проєкту. Не є винятком і будівництво будинків із сендвіч панелей.
Причому ваш проєкт будинку з нами — це не тільки можливість побудувати будинок в якому хочеться жити, але і правильний розподіл своїх накопичень!
Проєктування з користю це:
- Smart планування внутрішніх приміщень – більше бажаного навіть у невеликій площі.
- Якісні матеріали за доступні гроші.
- Великі знижки навіть для маленького будинку.
- Найкращі будівельно-монтажні бригади України – для всіх та кожного!
З вами буде працювати ваш індивідуальний архітектор, який досконало знайомий з технологією будівництва з СІП панелей.
Розробка проєкту триватиме від 5-10 днів. Основним чинником часу є розуміння замовником остаточного варіанта свого майбутнього проєкту.
Проєктування заміських будинків – дозвіл на будівництво
Проєкт, який ми підготуємо, – це всі необхідні документи для отримання дозволу на початок будівництва та введення в експлуатацію.
Наші головні архітектор та інженер обов’язково приїдуть на об’єкт майбутнього будівництва та правильно розмістять будинок на ділянці щодо сусідських будівель, червоних ліній тощо.
- Правильне розміщення будинку на ділянці;
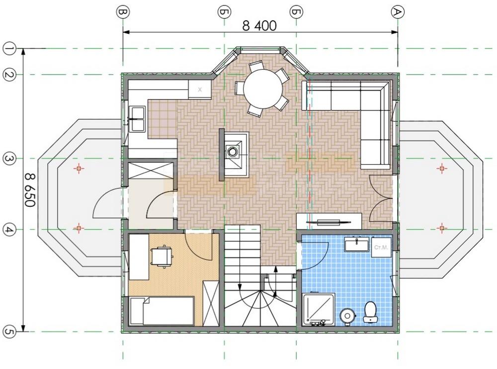
- Поверхові плани з розміщенням майбутніх меблів;
- Площі приміщень, терас, загальна площа;
- Специфікації вікон та дверей;
- План даху;
- Розрізи, фасади;
- План фундаменту, стяжки;
- Основні інженерні мережі;
- 3D зображення будинку в кольорі.
Smart проєктування – вигідне будівництво
Після розробки індивідуального проєкту підготуємо розгорнуту комерційну пропозицію на будівництво від Бауен Хаус.
Тільки грамотне проєктування на основі конструктивних розрахунків дозволяє звести міцний, надійний, довговічний будинок. І це не єдина причина, з якої приступати до будівництва можна тільки після розробки проєкту. Він включає і загальну архітектурну концепцію, і теплотехнічні розрахунки, і плани інженерних систем.

Бажаєте замовити проєкт?
- Надішліть посилання, або креслення від руки, фото чи відео проєкту, що сподобався, на нашу пошту: info@bauenhaus.ua.
- Отримайте першу комерційну пропозицію від Бауен Хаус.
- Укладіть Договір на індивідуальне проєктування.
- Оплатіть 12 000 гривень — вартість проєктування, які вам повернуть після початку будівництва.
- Головні архітектор та інженер обов’язково вивчать ділянку для будівництва.
- Отримайте ваш проєкт за 5-10 днів.
Боремося за найкращу ціну будівництва для вас
- Краща ціна від виробника. Компанія БАУЕН ХАУС самостійно виробляє СІП панелі та домокомплекти. Нами організовано дві пилорами із власними сушильними камерами бруса та дошки.
- Знижки до 20%. Обсяги нашого виробництва та будівництва гарантують великі знижки від постачальників на всі комплектуючі для СІП панелей, на оздоблювальні матеріали для фасаду та покрівлі, на металопластикові вікна та вхідні двері.
- Усі роботи виконуються лише нашими спеціалістами. Ми зуміли зібрати 5 будівельно-монтажних бригад, бригаду фасадників, бригаду спеціалістів внутрішніх оздоблювальних робіт, бригаду електриків та сантехніків.
- Безкоштовне проживання робітників. Всі наші бригади укомплектовані власними будівельними побутівками та всім необхідним інструментом. Оренда наших побутівок безкоштовна для наших замовників. Вам доведеться оплатити тільки доставку та вивіз.
- Календарні графіки будівництва. Початок робіт, завезення всього необхідного матеріалу виконуються у суворій відповідності до календарних графіків.
- Оплата частинами. Усі наші роботи оплачуються лише після їхнього якісного виконання.
- Гарантія від Бауен Хаус. Завжди прийдемо на допомогу, якщо виникне потреба нашої участі у розвʼязанні будь-якої проблеми з будинком.
Індивідуальне проєктування будинку вашої мрії
Одне з перших завдань, яке потрібно вирішити тим, хто планує будівництво будинку, – вибір проєкту. У портфоліо великих компаній, які не перший рік займаються проєктуванням приватних будинків, представлений багатий вибір готових проєктів. Можна зупинитися на одному з них, таке рішення має чимало переваг:
- будівництво будинку за готовим проєктом завжди обходиться дешевше;
- можна відразу приступати до будівельних робіт;
- не завжди замовникам вистачає уяви та знань, щоб чітко сформулювати свої вимоги до майбутнього будинку, на підставі яких фахівці створюватимуть проєкт;
- не завжди кінцевий результат відповідає очікуванням, якщо уявлення про будинок було досить розпливчастим. А у разі вибору готового проєкту одразу зрозуміло, чого чекати.
Але в індивідуального проєктування будинків плюсів значно більше.
Бувають ділянки, для яких потрібний типовий проєкт підібрати важко (нестандартне планування, складний рельєф).
Ще один момент пов’язаний вже не з об’єктивними умовами, а з людським фактором: людям часто неприємно усвідомлювати, що їхній будинок буде одним із багатьох клонів. Якщо людина зважилася завести власний будинок, то йому зазвичай хочеться, щоб він був єдиним у своєму роді, а не таким самим, як у сусіда.
Є люди, які до дрібниць продумують проєкт будинку, де всім членам сім’ї буде зручно і для кожного знайдеться куточок, щоб займатися улюбленою справою, не заважаючи іншим. Щоб збудувати такий будинок мрії, просто необхідний індивідуальний проєкт.
Вибираючи готовий проєкт, люди часто керуються першим враженням, а потім виявляється, що якісь моменти їх не влаштовують. Внести зміни до готового типового проєкту можна, але не кардинальні. Індивідуальне проєктування спочатку відкриває ширші можливості.
Оскільки архітектор та інші фахівці регулярно узгоджують із замовником усі деталі, досягається глибше розуміння останнім проєктної документації.
Зрештою, у разі розробки індивідуального проєкту у процесі будівництва здійснюється авторський нагляд за ходом його реалізації.
З чого складається проєктування
Проєктування дерев’яних будинків та каркасних будинків із СІП-панелей має багато спільного. Воно здійснюється на основі завдання, яке розробляється спільно із замовником. Крім його побажань, беруться до уваги технічні умови, результати геодезичних розвідок. Проєкт будинку із СІП-панелей складається з кількох частин, які розробляються у певній послідовності.
Насамперед визначається тип споруди, площа та поверховість, внутрішнє планування, кількість кімнат та їх призначення, конструкція даху.
Спершу створюється ескізний проєкт, потім робочий. Перший включає генеральний план ділянки, поверхові плани, поздовжній і поперечний розрізи, схематичні зображення покрівлі, фасаду. Розробка робочого проєкту будівель, які зводяться за будь-якою технологією, починається з архітектурного проєктування – створення комплекту креслень усіх конструкцій та вузлів.
Невіддільною складовою проєктування енергоефективних будинків є теплотехнічний проєкт. На цьому етапі обираються:
- домокомплект (вони розрізняються утеплювачем, який використовується при виробництві СІП-панелей, товщиною панелей для зовнішніх стін, даху, наявністю-відсутністю термовставок у каркасі);
- дверні та віконні конструкції;
- система опалення.
З урахуванням зробленого вибору розраховуються тепловтрати та орієнтовні витрати на опалення.
Конструктивна частина проєкту полягає у розрахунку навантажень та відповідного їм перерізу несучих елементів, проєктується силовий каркас. Окремо розробляється інженерно-технічний проєкт, де зображаються усі комунікації. У пакет документації також може входити дизайн-проєкт, де вказуються колірні та стилістичні рішення, оздоблювальні матеріали, іноді навіть розміщення меблів.
Проєктування каркасних будинків в Україні
За більш ніж десятирічний досвід будівництва канадських каркасних будинків ми нагромадили велику базу типових та індивідуальних проєктів. Ми зібрали свою групу архітекторів, конструкторів та дизайнерів, які зможуть розробити проєкт каркасного будинку будь-якої складності.
Ми проєктуємо:
- Приватні будинки та котеджі до 300 кв.м;
- дачні будинки під ключ;
- сауни та лазні;
- садові та гостьові будиночки;
- готелі, магазини, кіоски;
- школи, дитячі садки, санаторії;
- будинки з гаражем;
- будинки з терасою;
- реконструкції старих будинків, надбудови, прибудови.
Створення індивідуального проєкту можна порівняти з роботою особистого кравця. Наші архітектори підганяють будь-який проєкт будинку точно під ваші індивідуальні запити. А будівельні бригади створять точну копію із проєктом.
Наш архітектурний відділ ми називаємо “Art of Future”.
На основі наших проєктів ми будуємо каркасні будинки будь-якої складності.
Основні етапи проєктування канадських будинків
Архітектурна частина
Архітектурна частина – це один із головних етапів роботи над Вашим майбутнім канадським будинком. Він включає складання докладного технічного завдання, тобто, надання основної інформації про будинок мрії.
Спочатку необхідно визначитися, який проєкт ви хочете:
- невеликий одноповерховий будиночок;
- місткий одноповерховий котедж;
- дачний, садовий будиночок для літнього проживання;
- гостьовий будинок для цілорічного проживання;
- великий двоповерховий котедж із зимовим садом та басейном;
- будинок із повноцінним другим поверхом;
- будинок з мансардою;
- будинок з гаражем;
- будинок з терасою;
- будинок з каміном;
- будь-який інший будинок.
Конструктивний розділ
По-перше, знання відповідей на ці питання допоможе архітектору правильно розробити проєкт будинку з урахуванням знань про каркасні канадські будинки із СІП панелей. Провівши необхідні геолого-розвідувальні заходи, підібрати правильний тип фундаменту.
По-друге, потрібні відповіді на такі питання:
- Скільки людей та якого віку проживатимуть у будинку?
- Який спосіб життя у кожного члена сім’ї?
- Яка кількість кімнат потрібна для комфортного проживання?
- Чи любите Ви збиратися дружною компанією у просторій вітальні?
- Біля каміна чи на терасі?
- Чи часто у Вас гості?
- Чи потрібні гостьові кімнати, чи гостьовий будиночок?
- Сауна?
- Чи любите додаткове світло через еркер, чи мансардні вікна?
По-третє, зовнішній вигляд майбутнього будинку теж залежить від Ваших уподобань.
Фахівці Бауен Хаус зможуть врахувати всі Ваші побажання, втілити їх у вигляді комфортного та функціонального канадського каркасного будинку. Вивчення рельєфу та форми ділянки дозволить максимально ефективно розмістити Ваш будинок на місцевості та «вписати» його в навколишній ландшафт.
Наш досвід та знання допоможуть заощадити кошти для Вашого майбутнього будівництва ще на стадії проєктування.
Ми вміємо будувати недорогі, але якісні каркасні будинки із СІП панелей.
Отримавши у вас технічне завдання проєктування каркасного канадського СІП вдома, ми розпочинаємо розробки ескізних креслень.
Ескізні креслення
Робота над створенням ескізних креслень починається з надання інформації для наших фахівців про:
- запланованих у майбутньому будинку систем вентиляції;
- водопостачання;
- опалення;
- каналізації;
- приватних систем очищення води.
Ця інформація вважається необхідною, без якої просто неможливо здійснити грамотне планування майбутніх інженерних мереж, а головне комфортного проживання Вашої родини в новому будинку. Ця інформація важлива для розуміння майбутньої конструкції перекриття – двотаврові балки або панелі СІП. Внутрішні перегородки каркасного будинку:
- каркасні;
- гіпсокартонні;
- СІП панельні;
- магнезитові.
Ескізний проєкт складається з:
- план фундаменту;
- інженерних мереж першого поверху;
- поверхових планів;
- розрізів та фасадів;
- план даху;
- розмірів вікон та дверей;
- розміщення будинку на ділянці;
- 3D візуалізації.
Розробляємо кошториси на будівництво
Проєкт каркасного канадського будинку, виконаний фахівцями Бауен Хаус, завжди надає право на отримання будівельного паспорта та дозволу на будівництво.
Якщо покроково пройти всі ці етапи проєктування каркасного будинку з нами, то спільна робота виллється в цікаву та безпроблемну співпрацю – в результаті якої Ви станете власником будинку своєї мрії.
А в особі співробітників нашої компанії придбаєте вірних та надійних друзів.
Рекомендовані статті
Будівництво дуплексів із СІП панелей: будинок на дві родини “під ключ”
Дуплекс будинок має такі переваги: спільне інвестування з економією до 30% на будівельних матеріалах та роботах завдяки одній загальній стіні, фундаменту і даху, а також економія на комунікаціях для кожної сім’ї.
Двотаврова балка дерев’яна
Двотаврова балка дерев’яна Відомий та активно застосовуваний у будівництві …
Будівництво таунхаусів “під ключ” із СІП панелей
Компанія Bauen Haus розробляє проєкти та будує таунхауси, як житлові комплекси із приватних квартир. Зведення корпусу (коробки) будинку можна виконати за 2-3 місяці силами малої бригади з 4-5 працівників, оскільки компанія використовує передовий досвід, нові технології та продуктивний інструмент.
Складання будинку з СІП панелей – ціна за монтаж СІП панелей
У роботі ми керуємось державними нормами та правилами будівництва щодо технології виконання, якості результату, відповідальності та безпеки будівлі.
У Вас є питання щодо будівництва будинків за канадською технологією? Задавайте їх у коментарях!
Ми впроваджуємо на ринку України найсучасніші канадські та європейські технології будівництва енергоефективних будинків із застосуванням СІП панелей. Спільно зі шведськими фахівцями розроблено технологію будівництва каркасних СІП будинків з нульовим споживанням енергії – ZERO ENERGYTM.
Телефон: +38 (044) 334 31 84, DIRECTOR: +38 (044) 232 48 84, VIBER: +38 (050) 442 99 77, Электронная почта: info@bauenhaus.ua