Проект Меркурій – 208
| Загальна площа | 208 кв. м |
| Кількість кімнат | 4 |
Представляємо вам проєкт двоповерхового будинку за канадською технологією, який вирізняється своїм сучасним та елегантним дизайном. Дизайн будинку створений у сучасному стилі, з використанням великих вікон, що пропускають достатньо світла та роблять приміщення більш просторими. Один з особливих елементів будинку – це тераса та балкон з видом на мальовничу природу.
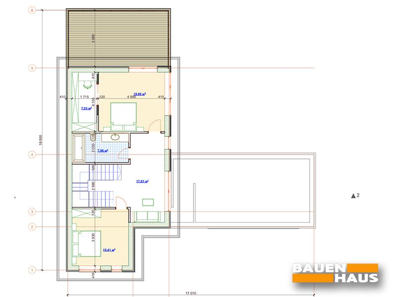
Планування будинку “Меркурій – 208”
Перший поверх
Другий поверх


Телефон: