Проект Аметист – 66
| Загальна площа | 66 кв. м |
| Кількість кімнат | 3 |
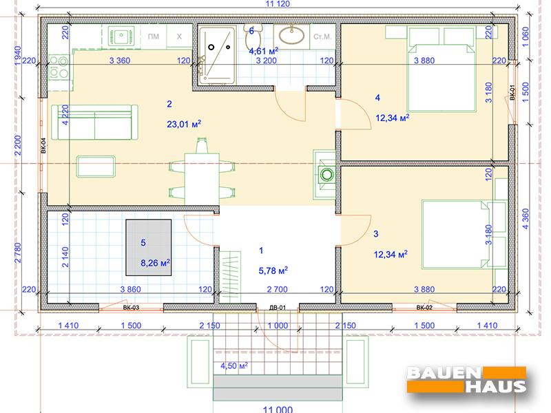
Проєкт цього одноповерхового будинку з СІП панелей, загальною площею 66 м2, вражає своєю ефективністю та функціональністю. В цьому дизайні основною ідеєю було створити затишний дім у невеликій площі, який буде відповідати потребам власників.
Обʼєднані вітальня, обідня зона та кухня створюють комфортне середовище для сімейних зустрічей та відпочинку. Дві спальні кімнати забезпечують приватність та затишок. Санвузол обладнаний сучасними зручностями.
Цей проєкт будинку за канадською технологією – це чудовий вибір для тих, хто цінує зручність, стиль та енергоефективність. Він створює затишне місце, де ви зможете насолоджуватися комфортом та спокоєм своєї нової домівки.
Планування будинку “Аметист – 66”

Телефон: