Проект Ялівець – 106
| Загальна площа | 106,10 м² |
| Тераса | 22,33 м² |
«Ялівець» — це двоповерховий будинок із мансардою та зручною критою терасою, спроєктований для спокійного життя за містом. Його габарити — 10,6 м × 8,6 м, що дозволяє розмістити будинок навіть на відносно невеликій ділянці.
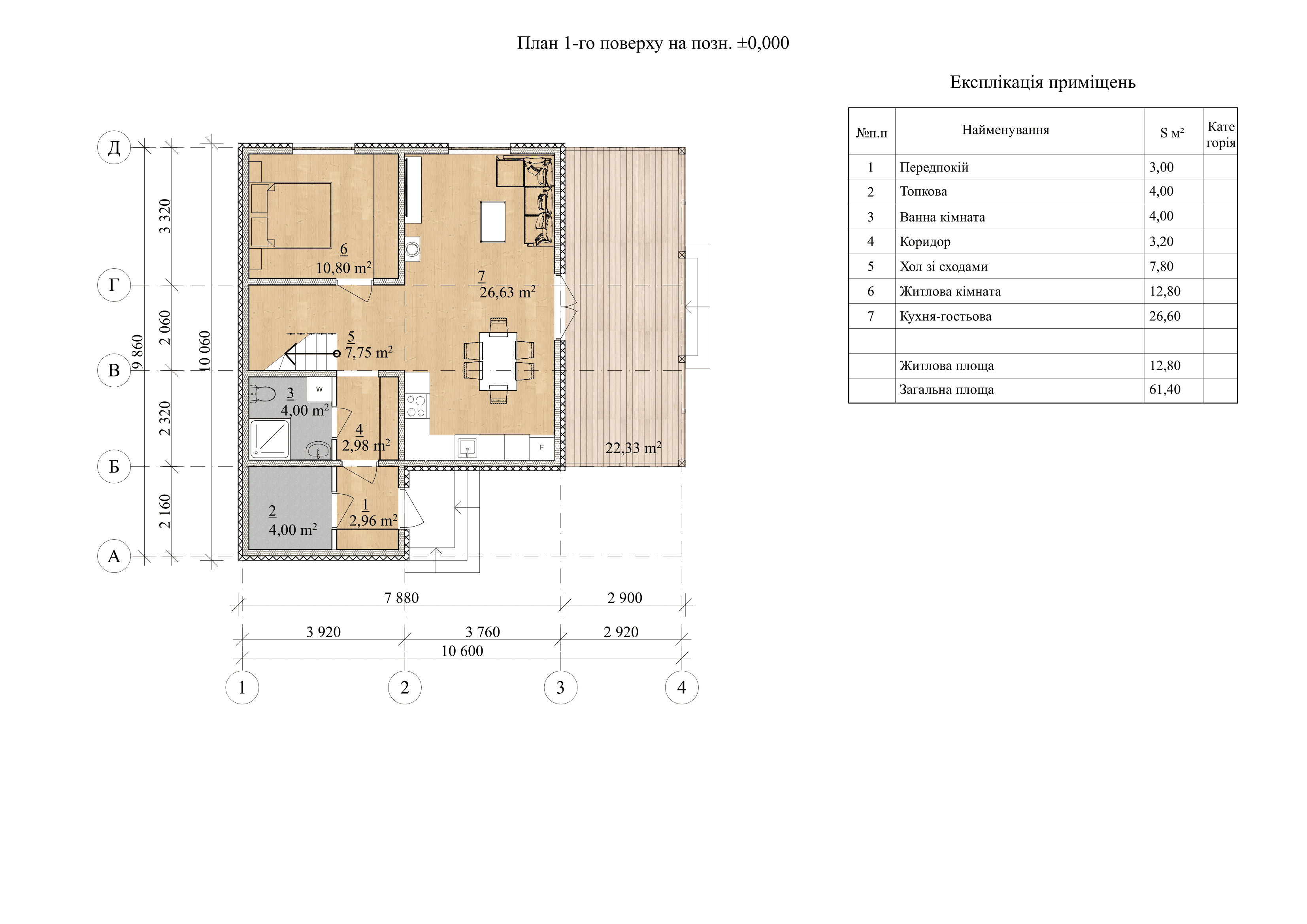
Перший поверх включає простору кухню-вітальню з великими вікнами та виходом на терасу, окрему кімнату, яка може слугувати спальнею або кабінетом, а також ванну кімнату, технічне приміщення і передпокій. У центрі — зручні сходи на другий поверх.
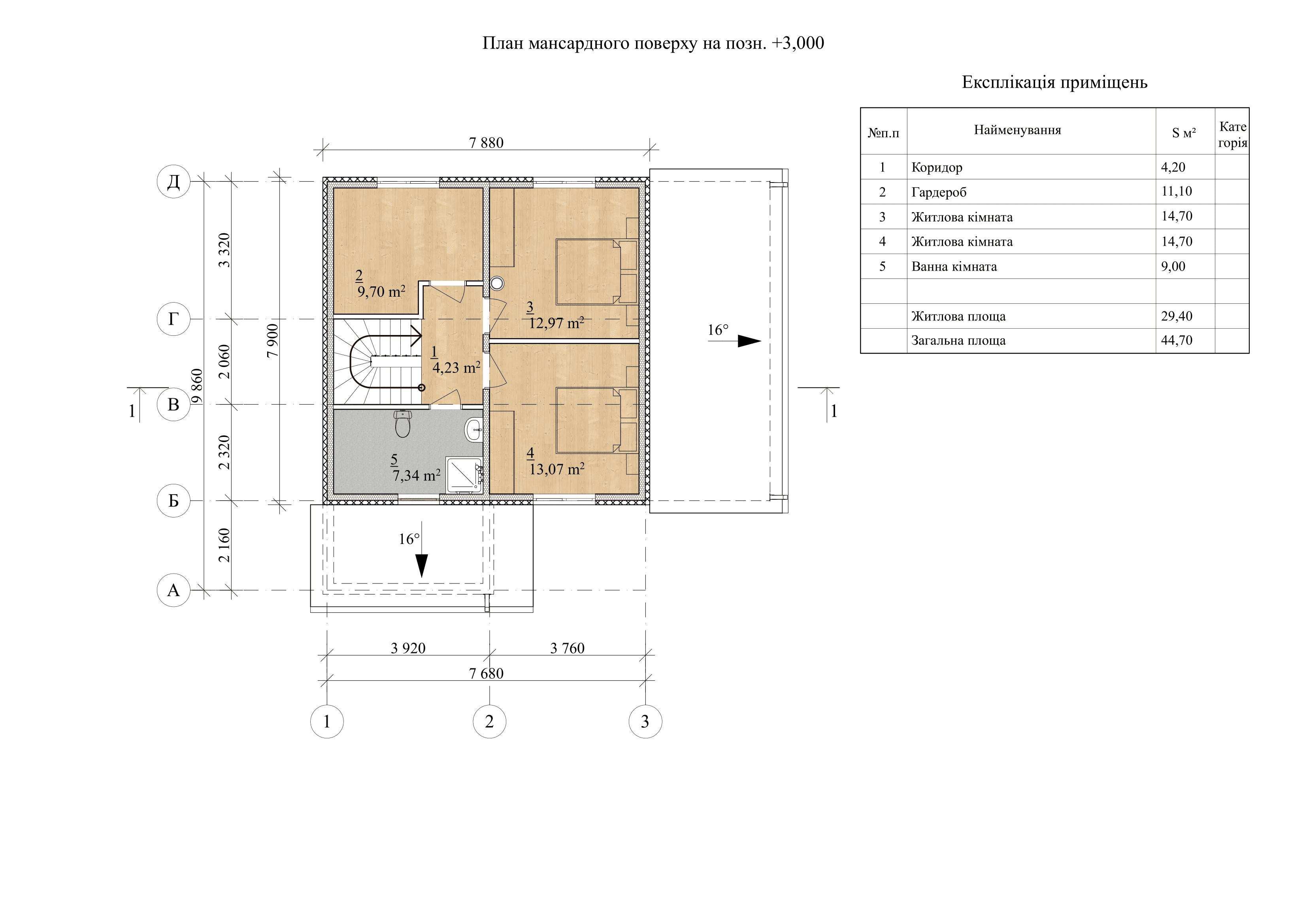
На мансарді розташовано дві спальні, гардеробну та ще одну ванну кімнату. Обидві спальні мають вікна у фронтонах, тож природного світла достатньо протягом дня.
Будинок має стриману, проте виразну архітектуру. Чітка геометрія фасаду, продумане зонування і легкий акцент на натуральні матеріали роблять його доречним у будь-якому ландшафті — чи то лісова ділянка, чи простір з відкритими краєвидами.
Планування СІП-будинку “Ялівець – 106”
Перший поверх

Другий поверх

Телефон: