Проект Єден – 87
| Загальна площа | 87 м2 |
| Кількість кімнат | 4 |
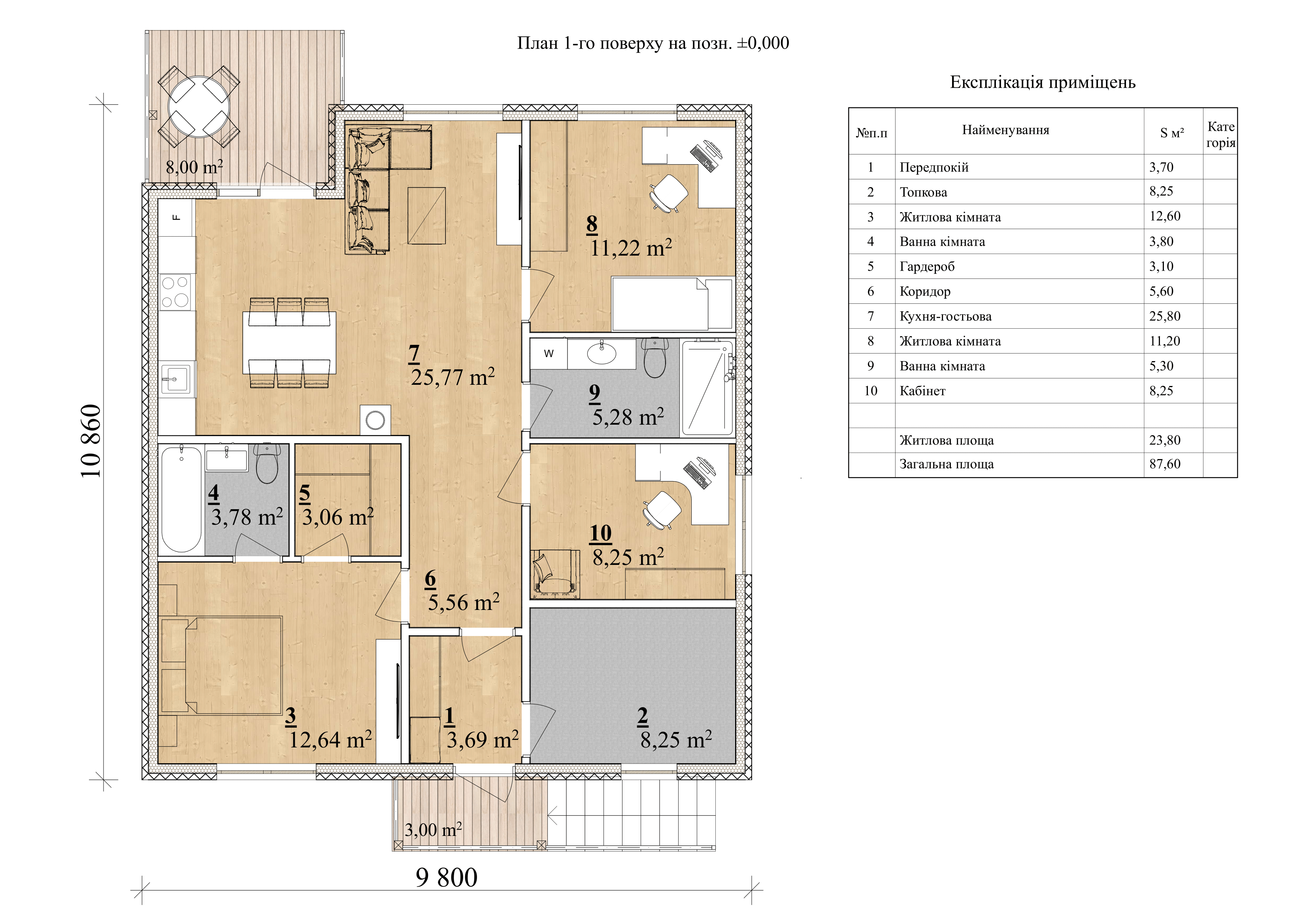
Проєкт одноповерхового будинку «Єден» площею 87,6 м² розроблений як практичне рішення для постійного проживання або використання як заміський дім. Завдяки компактним розмірам він підходить для ділянок невеликої площі, але при цьому забезпечує повний набір необхідних приміщень.
У плануванні передбачено дві житлові кімнати загальною площею 23,8 м², простору кухню-вітальню площею 25,8 м² з виходом на терасу, два санвузли, гардероб і окремий кабінет, який можна використати як робочий простір або додаткову кімнату. Зручне зонування дозволяє розділити приватну та денну частини будинку.
Фасади виконані у сучасному мінімалістичному стилі з акцентом на прості форми та великі вікна, що додають природного освітлення всередині. Проєкт передбачає будівництво за нашою технологією з СІП панелей, що забезпечує енергоефективність, швидкість монтажу та надійність конструкції.
Планування СІП-будинку “Єден – 87 м2”

Телефон: