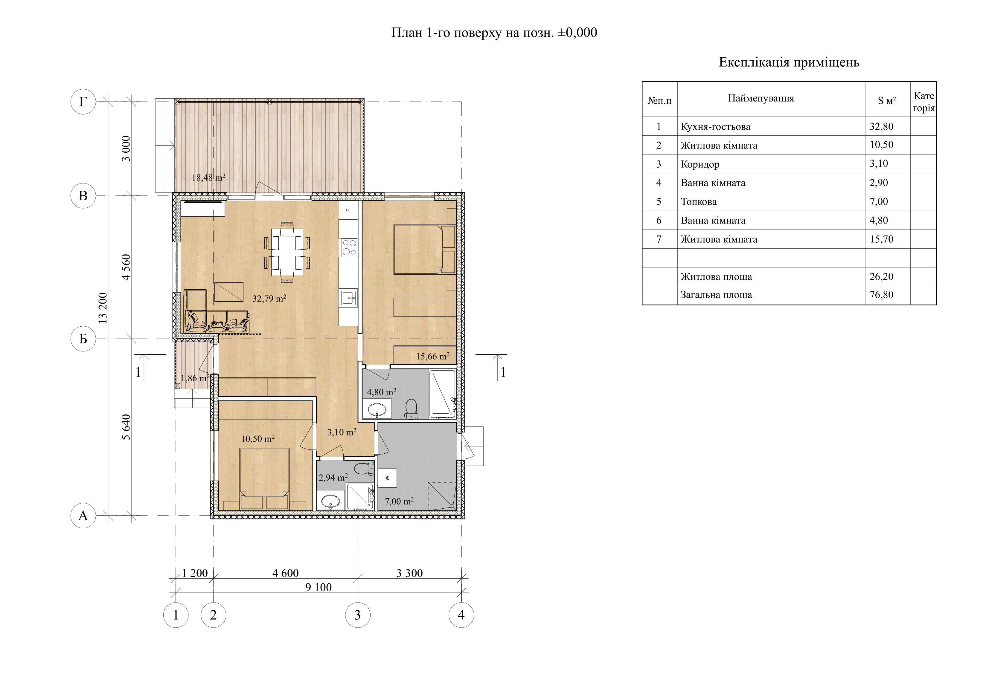
Проект Вільха – 76
| Загальна площа | 76,8 м2 |
| Тераса | 18,48 м2 |
Компактний одноповерховий будинок з двома спальнями, просторою кухнею-вітальнею та терасою для відпочинку. Загальна площа – 76,8 м², з яких 26,2 м² займають житлові кімнати. Завдяки функціональному плануванню, у будинку передбачено дві ванні кімнати, технічне приміщення та коридор, що з’єднує всі зони.
Фасад виконано в сучасному стилі з використанням спокійних контрастних відтінків. Панорамні вікна забезпечують природне освітлення протягом дня, а критий ґанок і відкрита тераса створюють додатковий простір для проведення часу на свіжому повітрі.
Проєкт «Вільха» підійде для постійного проживання невеликої родини або як дачний будинок. Будинок розроблено для будівництва з СІП-панелей власного виробництва. Ця технологія забезпечує енергоефективність, швидкість монтажу, стійкість до деформацій та добру шумоізоляцію. Проєкт підходить як для постійного проживання, так і для сезонного використання.
Планування СІП-будинку “Вільха – 76”

Телефон: