Проект Valeria – 106
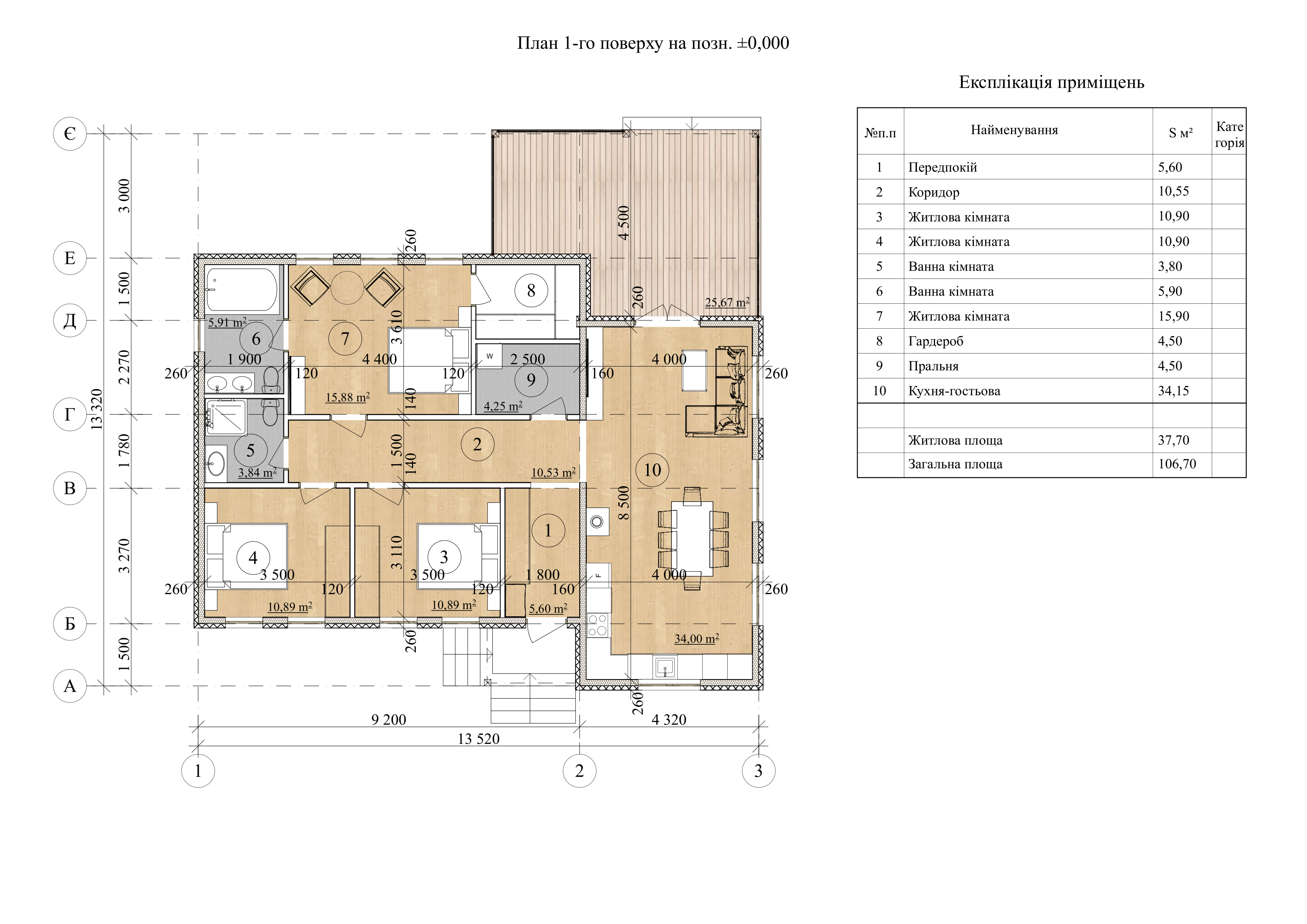
| Загальна площа | 106 м2 |
| Тераса | 25 м2 |
Одноповерховий будинок у сучасному стилі з плоским дахом та великою терасою під навісом. Завдяки чітким лініям і поєднанню світлого та темного оздоблення фасад виглядає стримано й актуально.
Планування передбачає простору кухню-вітальню площею 34 м² із виходом на терасу, три окремі спальні, дві ванні кімнати, гардероб і пральню. Зручне зонування відокремлює приватну частину будинку від спільної, створюючи комфортні умови для родини з дітьми.
Будинок спроєктований для будівництва за технологією СІП – енергоефективної, швидкої у зведенні та надійної в експлуатації. Це рішення підійде як для постійного проживання, так і для заміського відпочинку.
Планування СІП-будинку “Valeria – 106 м2”

Телефон: