Проект Тарасів – 122
| Загальна площа | 122 м2 |
| Тераса | 20 м2 |
Проєкт будинку «Тарасів» поєднує сучасну архітектуру та функціональне планування. Завдяки продуманій конфігурації він стане зручним варіантом для постійного заміського проживання. Архітектура з чіткими лініями та великими вікнами робить будівлю виразною та наповненою світлом.
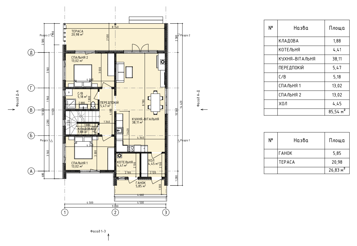
На першому поверсі розташована простора кухня-вітальня площею 38 м², яка має вихід на велику терасу. Також передбачено дві спальні, санвузол, хол, котельню та комору.
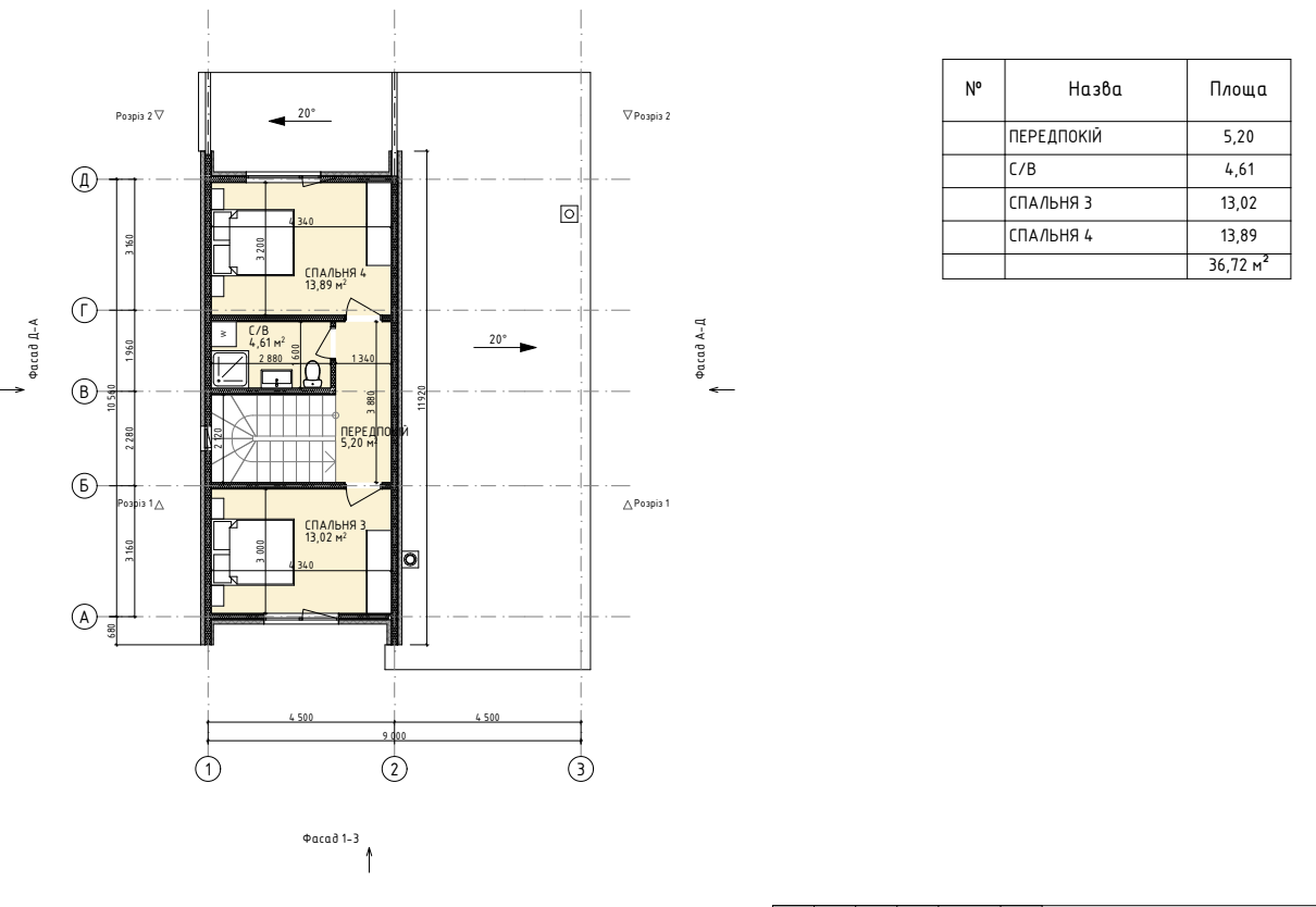
Другий поверх включає ще дві спальні та ванну кімнату, що забезпечує комфортне планування для родини або прийому гостей.
Загальна житлова площа становить 122 м². Окремо варто виділити терасу площею майже 21 м² та зручний ґанок.
Будинок проєктований для будівництва за технологією СІП панелей, що гарантує енергоефективність, швидкість монтажу та довговічність конструкції.
Планування СІП-будинку “Тарасів – 122 м2”
Перший поверх

Другий поверх

Телефон: