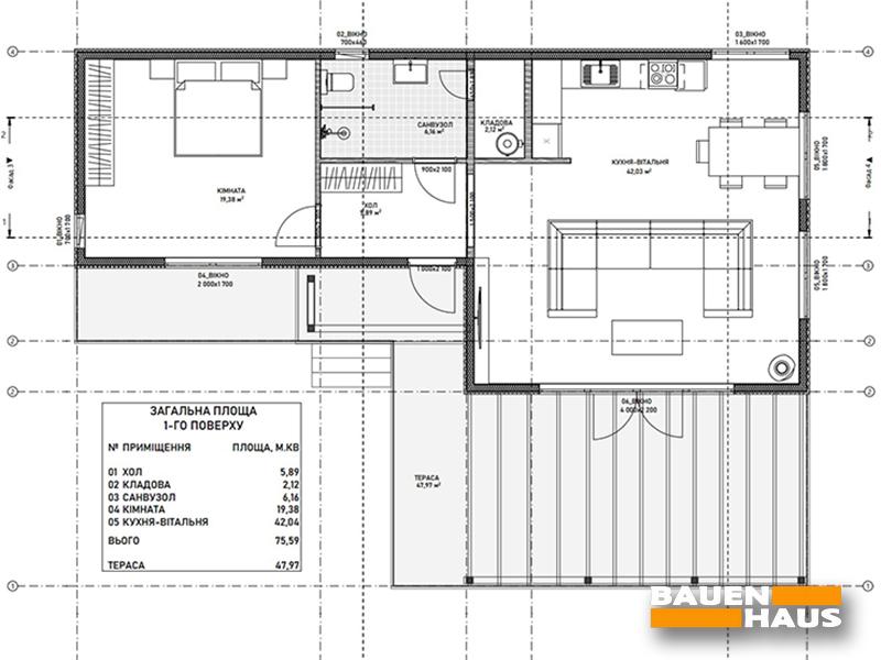
Проект Summer – 76
| Загальна площа | 76 кв. м |
| Тераса | Есть, 48 кв. м |
| Кут нахилу даху | Плоская |
| Кількість кімнат | 1 |
Проект компактного одноповерхового СІП будинку у сучасному стилі загальною площею 76 кв. м із більшою терасою на 48 кв. м. Відмінно підійде як заміський дачний будинок для пари без дітей.
Планування СІП-будинку

Телефон: