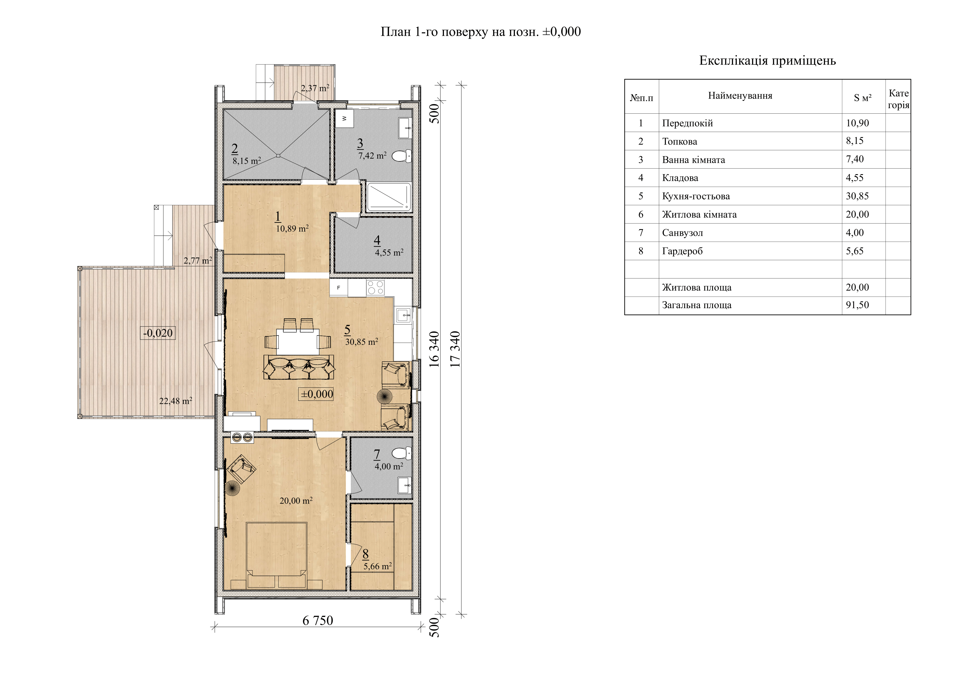
Проект Стеценка – 91
| Загальна площа | 91 м2 |
| Тераса | 22 м2 |
Проєкт «Стеценка» – канадський будинок площею 91 м² з великою терасою та продуманим плануванням в одному рівні. Фасади поєднують вертикальне металеве облицювання насиченого зеленого кольору з дерев’яними вставками та штукатуркою торцевої стіни. Двосхилий дах з металевим покриттям і накрита тераса формують стриманий, але виразний силует будинку.
Центр будинку – простора кухня-вітальня площею 30,85 м². Тут легко розмістити повноцінну робочу кухню, обідній стіл та зону відпочинку. З кімнати передбачений вихід на терасу площею понад 22 м², яку можна використовувати як літню їдальню або місце для відпочинку на свіжому повітрі. Поруч розташована кладова, що зручно для зберігання запасів та побутових дрібниць.
Приватна частина містить дві кімнати. Основна спальня площею 20 м² доповнена окремим гардеробом 5,65 м². Друга кімната 8,15 м² підійде для дитини, гостевої або робочого кабінету. У будинку запроєктовано ванну кімнату 7,4 м² та окремий санвузол 4 м², що спрощує щоденне користування. Вхідна зона включає просторий передпокій 10,9 м² і технічне приміщення 8,15 м² для інженерного обладнання.
Конструкція будинку базується на СІП-панелях, що забезпечує стабільні теплотехнічні показники й дає змогу ефективно використовувати енергію. «Стеценка» 91 м² підходить для постійного проживання невеликої сім’ї, поєднуючи лаконічну архітектуру, раціональне планування та зручний вихід на велику терасу.
Планування СІП-будинку “Стеценка 91 м2”

Телефон: