Проект Секвоя – 147
| Загальна площа | 147 м2 |
| Тераса | 25 м2 |
Проєкт «Секвоя» – це сучасний будинок із загальною площею 147 м², розроблений для комфортного проживання родини. Завдяки технології будівництва із СІП панелей будинок має високу енергоефективність, швидкі терміни зведення та міцну конструкцію.
Архітектура та екстер’єр
Будинок виконаний у сучасному стилі, що поєднує прості геометричні форми та природні матеріали. Контрастне поєднання світлих і темних фасадних елементів надає йому виразності, а використання дерев’яних вставок створює теплу атмосферу. Велика тераса на задньому дворі розширює житловий простір, дозволяючи облаштувати зону для відпочинку або обіду на свіжому повітрі.
Передбачене критий навіс для автомобіля, що інтегрується у загальну архітектуру будівлі. Огородження з металу та дерева підкреслює стиль і забезпечує приватність.
Планування першого поверху
На першому поверсі розташовані:
- Простора кухня-вітальня площею 37,85 м² – функціональне рішення, що поєднує місце для приготування їжі та зону відпочинку.
- Передпокій (11,31 м²) із зручним входом.
- Санвузол (6,15 м²).
- Топкова кімната (10,30 м²) для розміщення інженерних систем.
- Комора (2,80 м²).
- Господарське приміщення (10,60 м²), яке можна використовувати для зберігання або як майстерню.
Відкрите планування створює відчуття простору, а панорамні вікна забезпечують природне освітлення та зв’язок із природою.
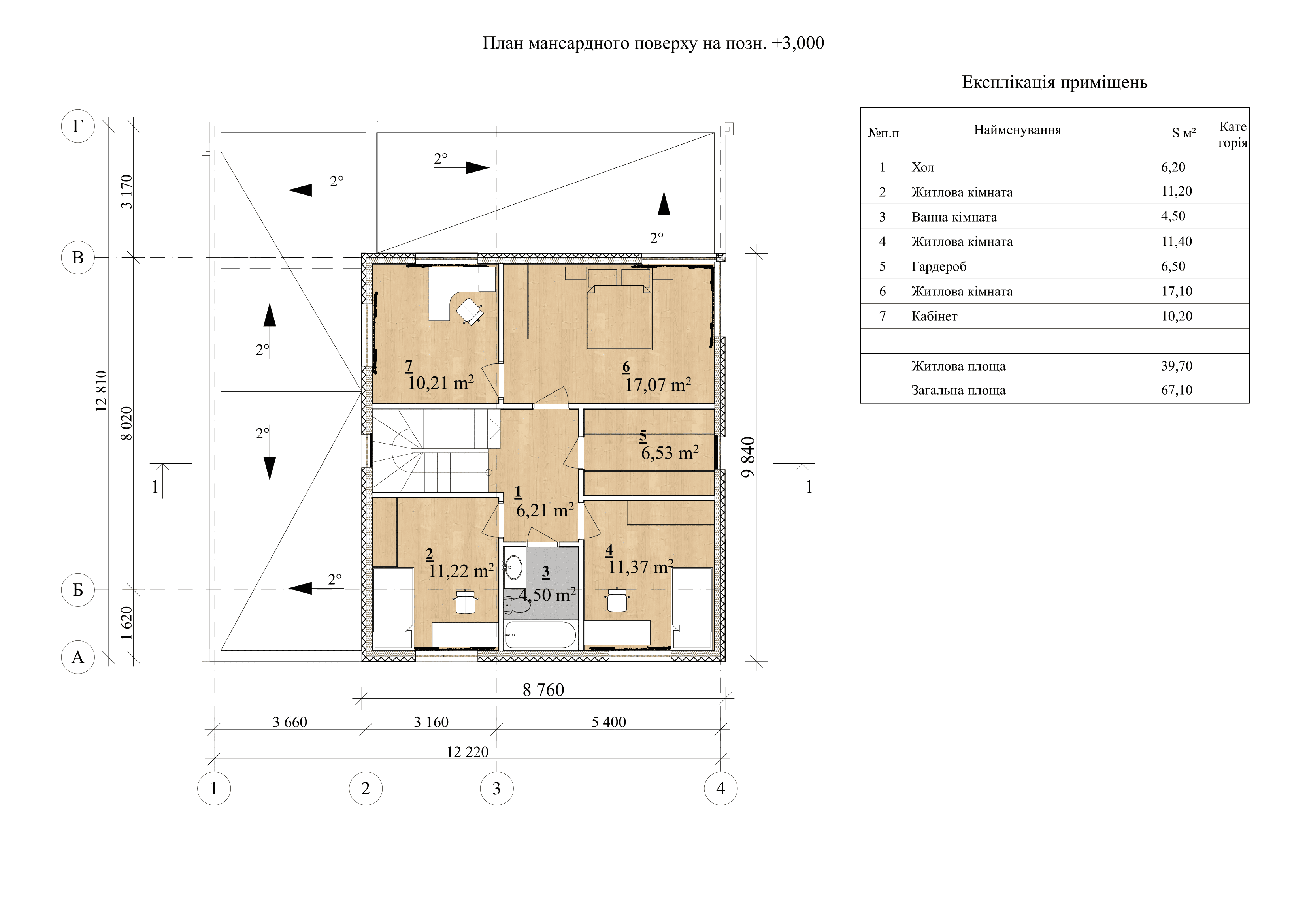
Планування мансардного поверху
Другий поверх – це приватна зона будинку, що містить:
- Три житлові кімнати (11,20 м², 11,40 м², 17,10 м²), які можуть використовуватися як спальні або гостьові.
- Кабінет (10,21 м²), що ідеально підходить для роботи чи навчання.
- Гардеробну (6,50 м²).
- Санвузол (4,50 м²).
- Хол (6,20 м²) для зручного доступу до кімнат.
Завдяки продуманому плануванню другий поверх забезпечує затишний простір для всіх членів родини.
Переваги будинку
✅ Енергоефективність – СІП панелі забезпечують високий рівень теплоізоляції, що дозволяє зменшити витрати на опалення.
✅ Швидке будівництво – використання готових панелей суттєво скорочує терміни зведення.
✅ Сучасний дизайн – поєднання мінімалізму та природних матеріалів створює стильний вигляд будинку.
✅ Раціональне планування – кожен метр площі використано ефективно, без зайвих перегородок.
✅ Комфортне життя – відкриті простори, панорамні вікна та тераса роблять проживання максимально зручним.
Проєкт «Секвоя» – це вдале рішення для тих, хто шукає сучасний, стильний та теплий будинок для своєї родини.
Планування СІП-будинку “Секвоя – 147”
Перший поверх

Другий поверх

Телефон: