Проект Розантій – 186
| Загальна площа | 186 кв.м |
| Тераса | 21 кв. м |
| Кількість кімнат | 3 |
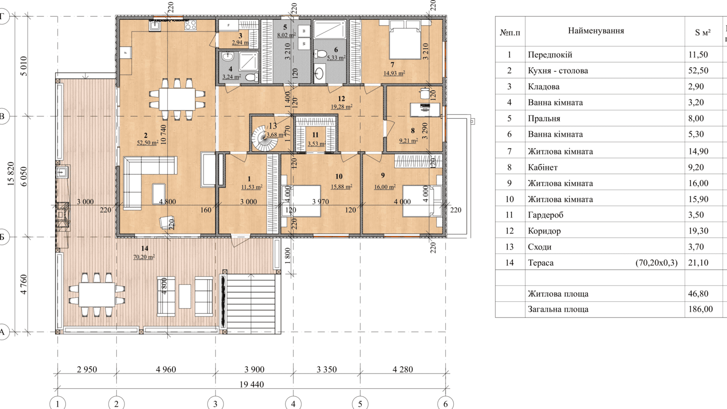
Загальна площа одноповерхового будинку з СІП панелей – вражаючі 186 м2. Починаючи з передпокою ви відразу відчуєте атмосферу, яку створює наше планування. Вітальня, яка одночасно і сучасна, і затишна, плавно переходить у кухню, обладнану за останніми словами техніки.
У нашому проєкті ми дбаємо про кожен квадратний метр. Комора та пральня забезпечать вам простір для зберігання, а ванні кімнати – максимальний комфорт. Тут враховано навіть найдрібніші деталі, щоб зробити ваше життя більш практичним та легшим.
Три житлові кімнати створюють ідеальні умови для проживання всіх членів родини, або тимчасового перебування гостей. Кабінет і гардероб дозволяють вам організувати свій робочий та особистий простір так, як ви бажаєте. І все це, звісно ж, зручно розташовано у просторому коридорі, який лине вздовж будинку.
Сходи ведуть на цокольний поверх, що відкриває нові можливості для вашого простору. Але саме на першому поверсі розташована особлива розкіш – велика тераса площею 21 м2. Це місце, де ви зможете насолоджуватися свіжим повітрям та красою природи, починаючи кожен новий день або розслаблюючись у вечірній час.
Bauen Haus пропонує більше, ніж просто будинок. Ми пропонуємо комфорт, якість та дизайн, щоб ваше життя стало якіснішим та насиченішим. Оберіть майбутнє з вашою новою оселею мрії від Bauen Haus!
Планування будинку “Розантій – 186”
Перший поверх
Цокольний поверх


Телефон: