Проект Ретрит – 15
| Загальна площа | 15 кв. м |
| Тераса | 11 кв. м |
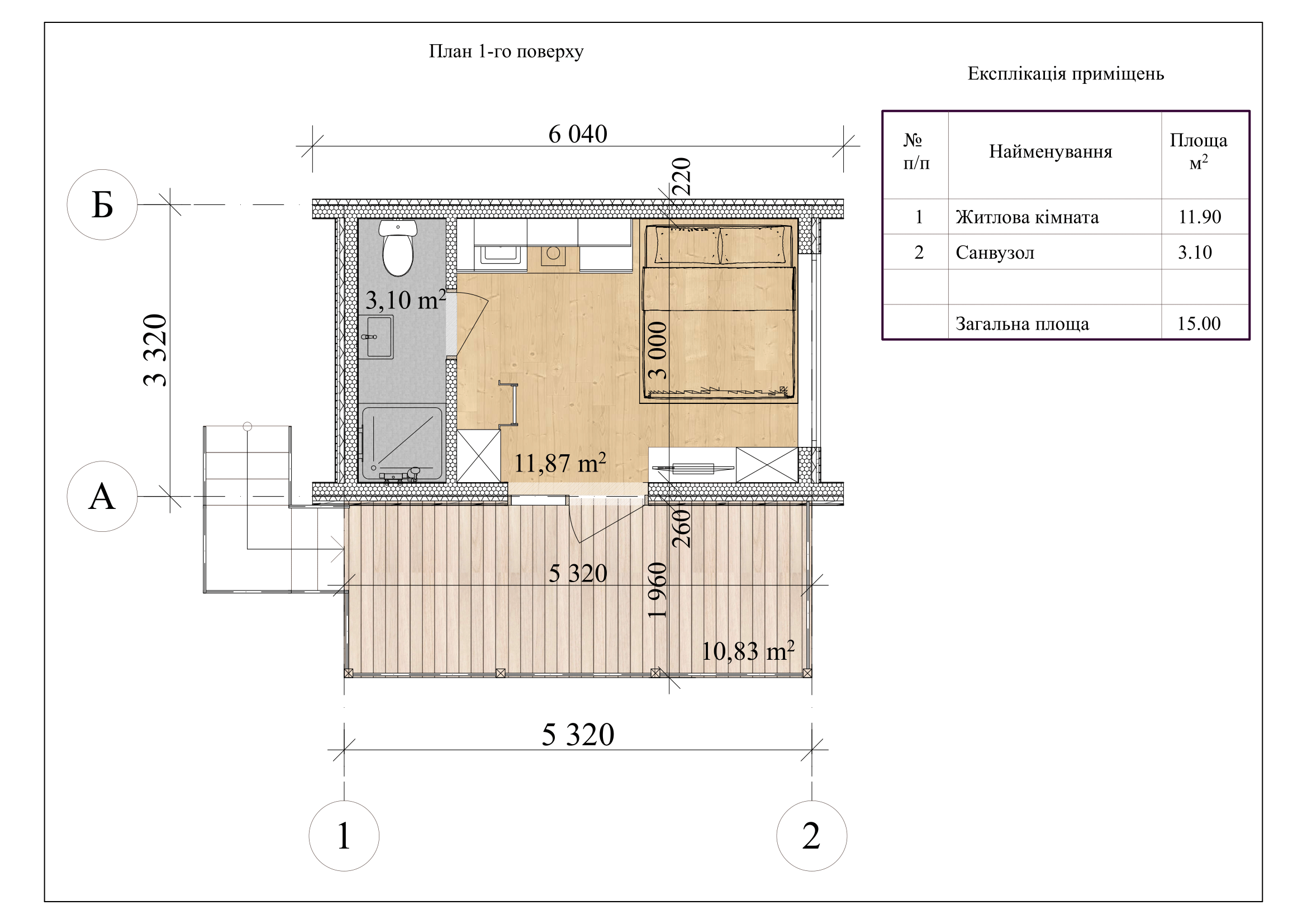
Проєкт одноповерхового будинку від Bauen Haus, виконаний у стилі барнхаус, пропонує компактне та практичне рішення для відпочинку. Загальна площа будинку становить 15 м². Проєкт розрахований під будівництво з СІП панелей, які забезпечують надійність та енергоефективність будівлі.
Планування включає кухню-вітальню та санвузол, що робить будинок зручним для короткострокового та довгострокового проживання. Кухня-вітальня – універсальний простір для приготування їжі та відпочинку. Санвузол обладнаний усім необхідним для щоденного використання.
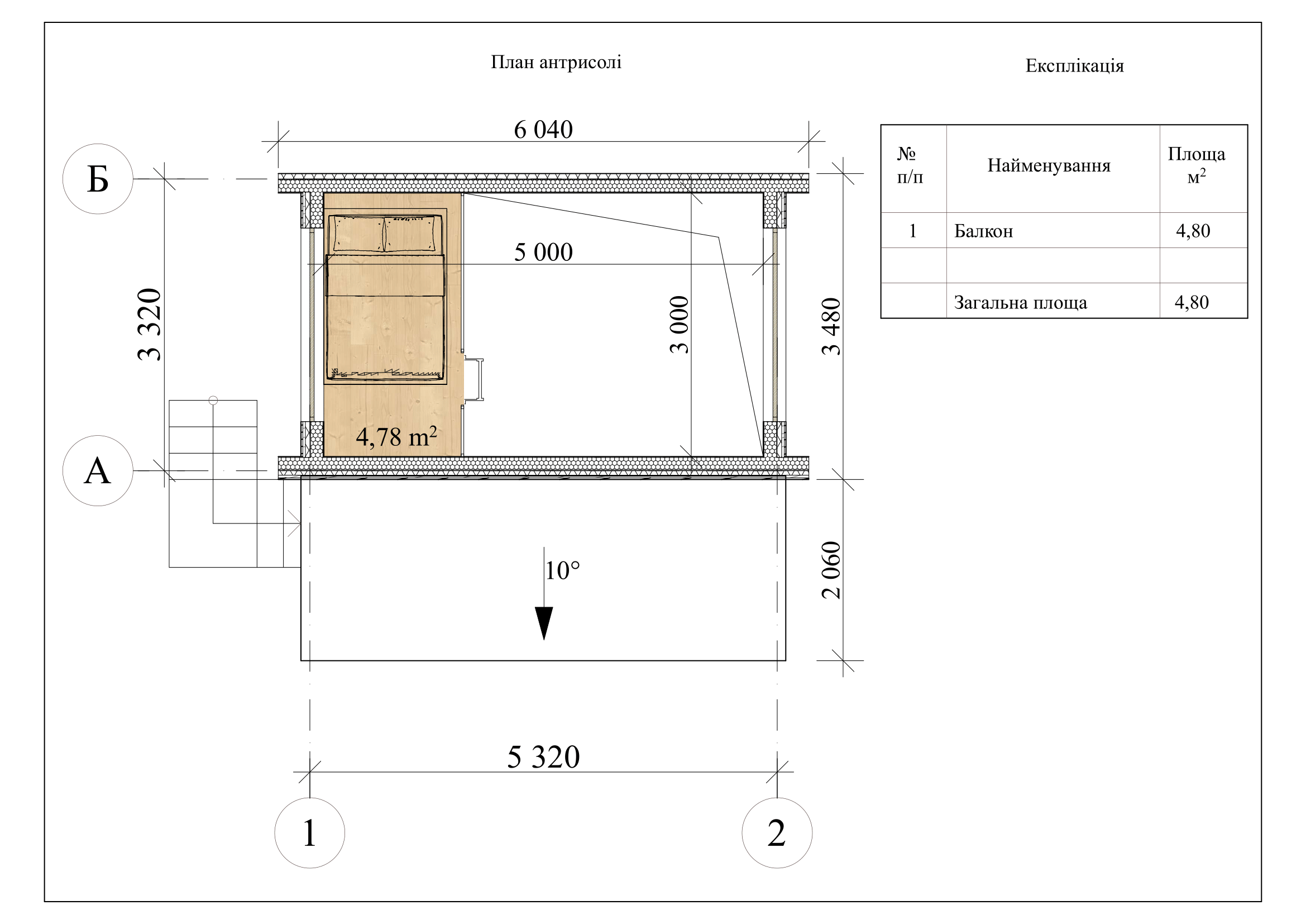
Спальне місце розташовано під стелею поруч з видовим вікном. В основній частині будинку можна розташувати як диван, так і друге повноцінне ліжко. Так, у будинку можуть комфортно розташуватись 4 людини, наприклад, сімʼя з дітьми.
Тераса площею 11 м² є додатковим простором для проведення часу на свіжому повітрі. Це місце ідеальне для обідів на відкритому повітрі або просто відпочинку з книгою.
Будинок підходить для здачі в оренду, що робить його вигідним для бізнесу та власників видових ділянок. Невелика площа забезпечує легкість обслуговування та утримання. Матеріали відповідають сучасним стандартам якості та безпеки.
Проєкт Ретрит – 15 м2 від Bauen Haus – це раціональне рішення для тих, хто шукає невеликий та функціональний простір для відпочинку.
Планування СІП-будинку “Ретрит – 15”
Перший поверх

Спальне місце під стелею

Телефон: