Проект Редвуд – 143
| Загальна площа | 143 м2 |
| Кількість кімнат | 4 |
Проєкт будинку «Redwood» – це сучасне рішення для сім’ї, яке поєднує раціональне планування та надійність технології будівництва з СІП панелей.
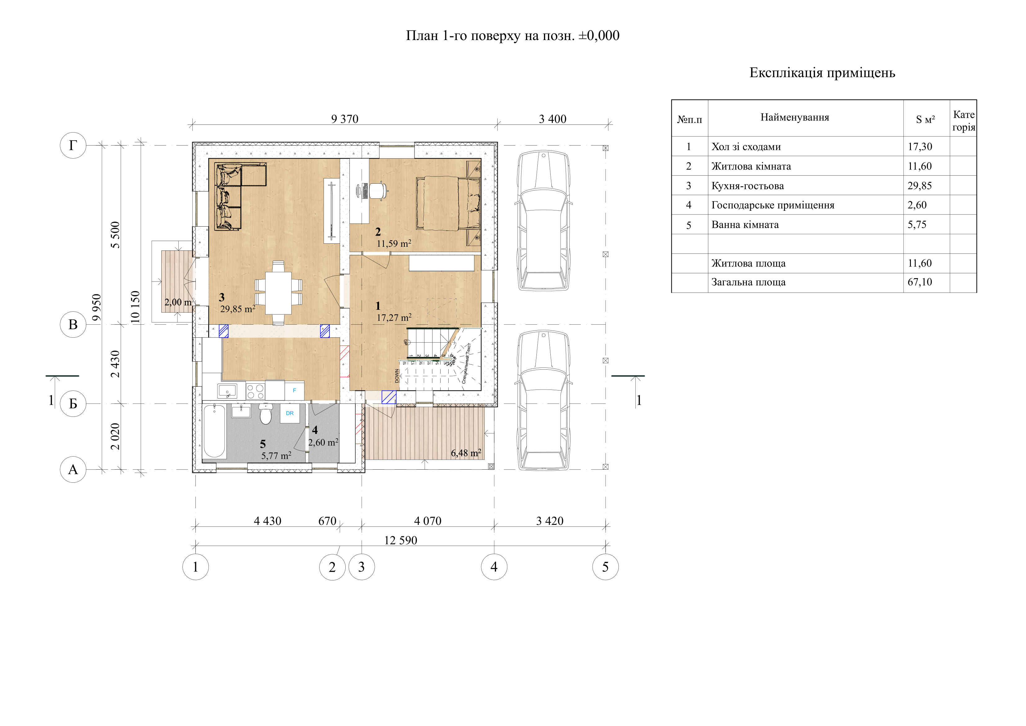
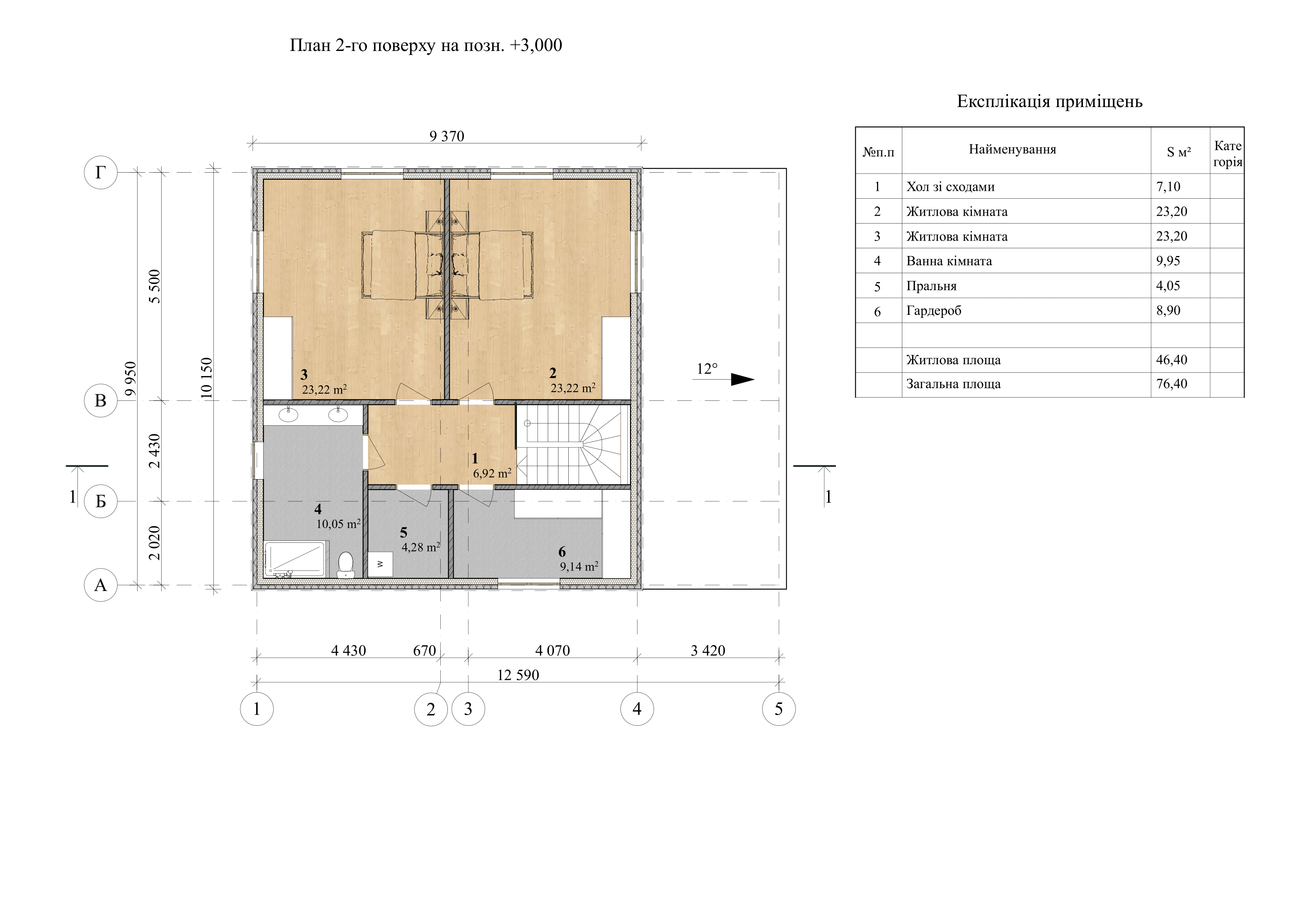
На першому поверсі передбачено простору кухню-вітальню площею майже 30 м², зручний хол зі сходами, окрему житлову кімнату, ванну та господарське приміщення. Другий поверх має дві великі спальні по 23 м², простору ванну кімнату, гардероб і пральню. Таке планування дозволяє забезпечити комфортне проживання як для родини з дітьми, так і для тих, хто цінує функціональність і простір.
Будинок спроєктований під будівництво із застосуванням СІП панелей власного виробництва. Ця технологія має низку переваг:
- висока енергоефективність – будинок зберігає тепло взимку та прохолоду влітку,
- швидкі терміни зведення – від проєкту до готового житла проходить у кілька разів менше часу, ніж у традиційному будівництві,
- міцність та довговічність конструкцій,
- екологічність матеріалів та здоровий мікроклімат у приміщенні.
Проєкт Редвуд поєднує практичність, сучасний зовнішній вигляд та технологічність, що робить його вигідним вибором для будівництва власного будинку.
Планування СІП-будинку “Редвуд – 143 м2”
Перший поверх

Другий поверх

Телефон: