Проект Прилуки – 141
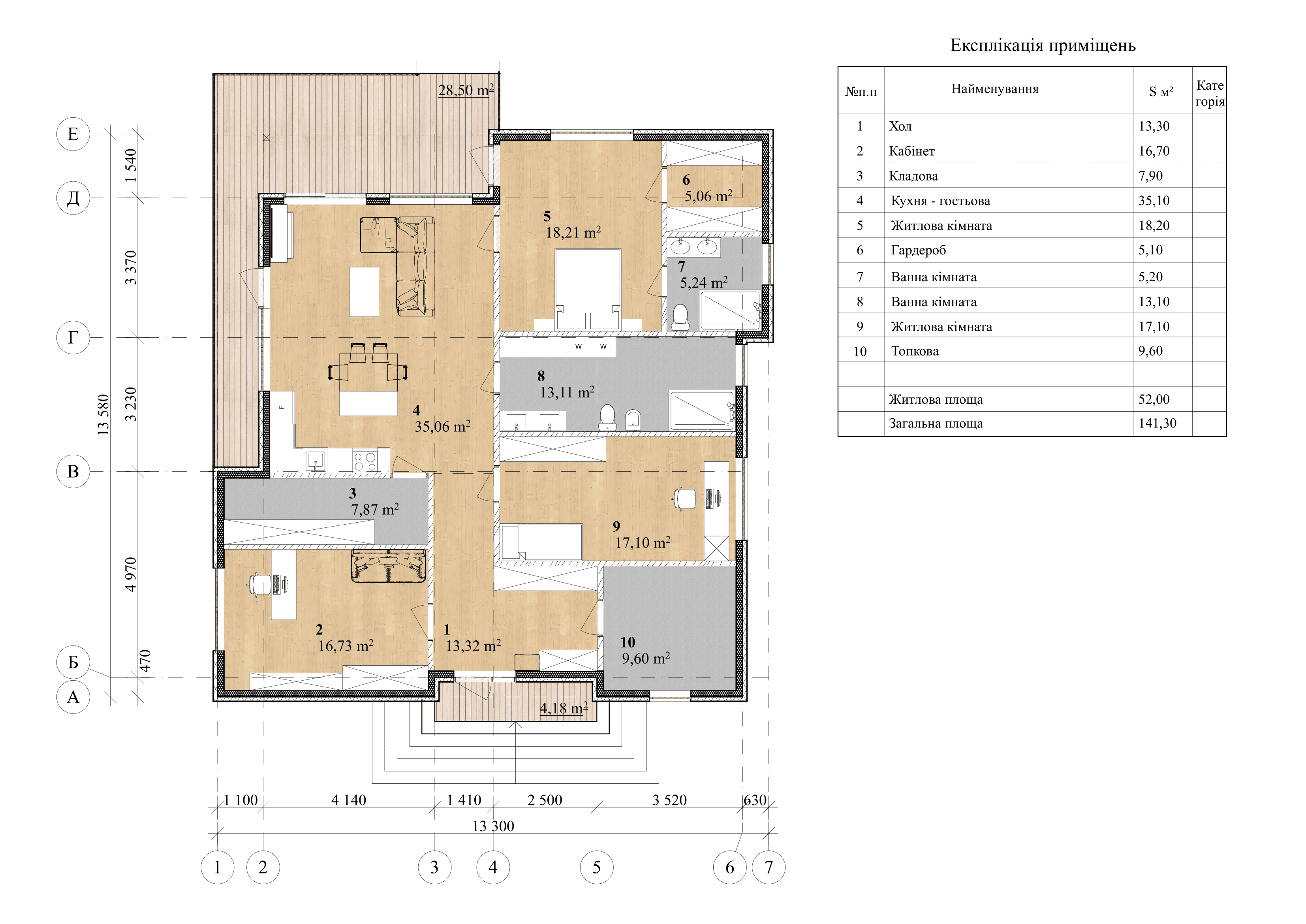
| Загальна площа | 141 кв. м |
| Тераса | 28 кв. м |
| Кількість кімнат | 3 |
Представляємо новий проєкт одноповерхового будинку з СІП панелей від компанії Bauen Haus, загальною площею 141 м². Планування будинку створене з урахуванням потреб сучасних родин та включає всі необхідні приміщення для комфортного проживання.
В будинку передбачена простора кухня-вітальня, яка стане центральним місцем для сімейних зустрічей та приготування їжі. Дві окремі спальні забезпечують приватність та спокій для відпочинку. Два санвузли дозволяють зручно розподілити ранкові та вечірні ритуали для всієї родини.
Кабінет стане зручним місцем для роботи, де можна зосередитись на важливих справах. Топкова кімната забезпечить належний рівень енергоефективності та дозволить підтримувати оптимальний температурний режим у будинку. Гардеробна та кладова надають додатковий простір для зберігання речей, що допомагає підтримувати порядок та організованість у житлових приміщеннях.
Тераса – місце, де можна насолоджуватися свіжим повітрям, відпочивати та проводити час з родиною або друзями на відкритому просторі.
Будинок збудований з високоякісних СІП панелей, що забезпечують міцність та теплоізоляцію. Це рішення дозволяє значно скоротити терміни будівництва та забезпечити енергоефективність будинку протягом усього року.
Компанія Bauen Haus пропонує цей проєкт як готове рішення для тих, хто цінує раціональність, функціональність та комфорт у своєму житлі. Професійний підхід до будівництва та використання сучасних матеріалів гарантують довговічність та надійність конструкції.
Запрошуємо ознайомитися з деталями проєкту та відвідати наші демонстраційні будинки, щоб на власні очі переконатися у перевагах технології СІП панелей та нашого підходу до будівництва житла.
Планування СІП-будинку “Прилуки – 141”
Ширина – 13,3 м
Довжина – 13,58 м

Телефон: