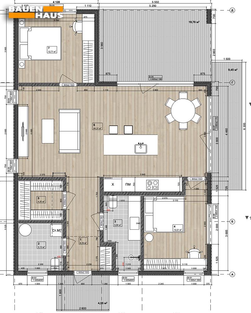
Проект Прага – 98
| Загальна площа | 98 кв. м |
| Тераса | Есть |
| Кількість кімнат | 3 |
Проект стильного одноэтажного канадского дома общей площадью 98 м2 на две спальни с дополнительным третьим спальным местом на антресоли.
Планировка канадского дома “Прага – 98”

| Загальна площа | 98 кв. м |
| Тераса | Есть |
| Кількість кімнат | 3 |
Проект стильного одноэтажного канадского дома общей площадью 98 м2 на две спальни с дополнительным третьим спальным местом на антресоли.
