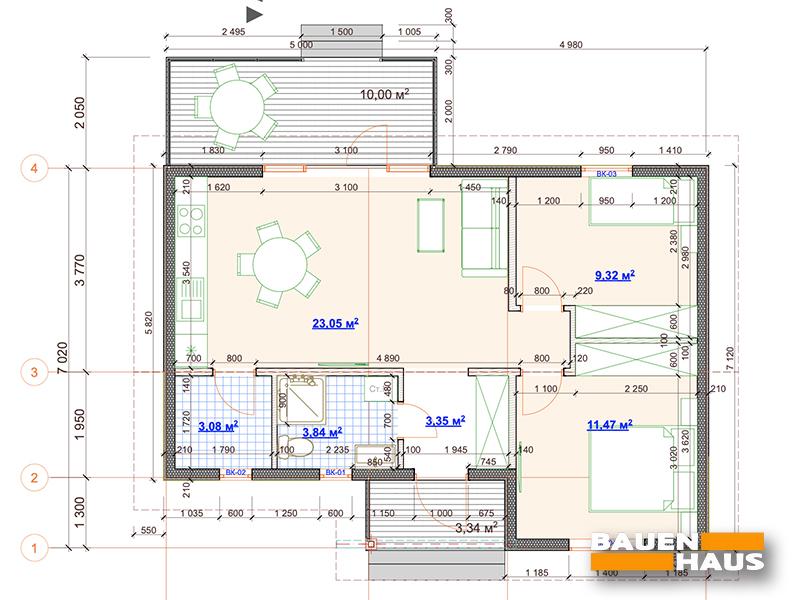
Проект Пион – 53
| Загальна площа | 53 кв. м |
| Тераса | Есть, 10 кв. м |
| Кількість кімнат | 3 |
Проєкт компактного одноповерхового будинку за канадською технологією загальною площею 53 м2. Будинок за цим проєктом чудово підійде як для постійного проживання невеликої родини, так і як дачний будинок для відпочинку будь-якої пори року.
Планировка СИП-дома “Пион – 53”

Телефон: