Проект Переяслав – 105
Мансардный дом из СИП панелей общей жилой площадью 105 м2 в классическом архитектурном стиле с балконом и открытой террасой.
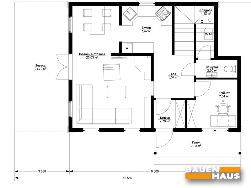
Планировка СИП-панельного дома “Переяслав – 105”
Первый этаж

Мансарда

Мансардный дом из СИП панелей общей жилой площадью 105 м2 в классическом архитектурном стиле с балконом и открытой террасой.

