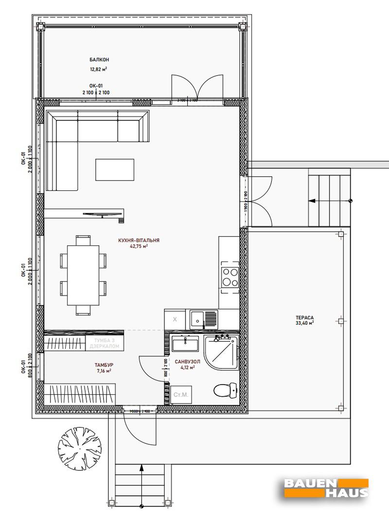
Проект Павловнія – 54
| Загальна площа | 54 кв. м |
| Тераса | Есть, 33 кв. м |
| Кількість кімнат | 1 |
Проект, реалізований нами надбудови над гаражем, невеликого каркасного будиночка із СІП панелей загальною площею 54 м2 + балкон (13 м2) та тераса (33 м2).
Проект СІП-панельної надбудови Павловнія – 54 м2
Планування

Телефон: