Проект Осокорки II – 112
| Загальна площа | 112 кв. м |
| Кількість кімнат | 6 |
Компактний сучасний двоповерховий канадський будинок загальною площею 112 кв. м.
Проект канадського СІП будинку Осокорки ІІ – 112 м2
План 1-го поверху

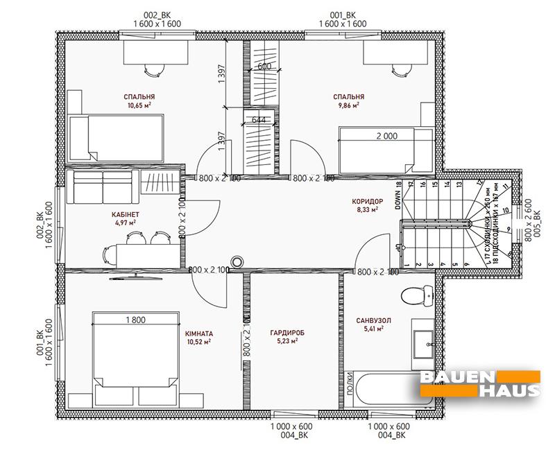
План 2-го поверху

| Загальна площа | 112 кв. м |
| Кількість кімнат | 6 |
Компактний сучасний двоповерховий канадський будинок загальною площею 112 кв. м.

