Проект Осика – 112
| Загальна площа | 112 кв.м |
| Кількість кімнат | 4 |
Представляємо унікальний проєкт котеджу з мансардним поверхом, де поєднуються затишок, функціональність та елегантний дизайн.
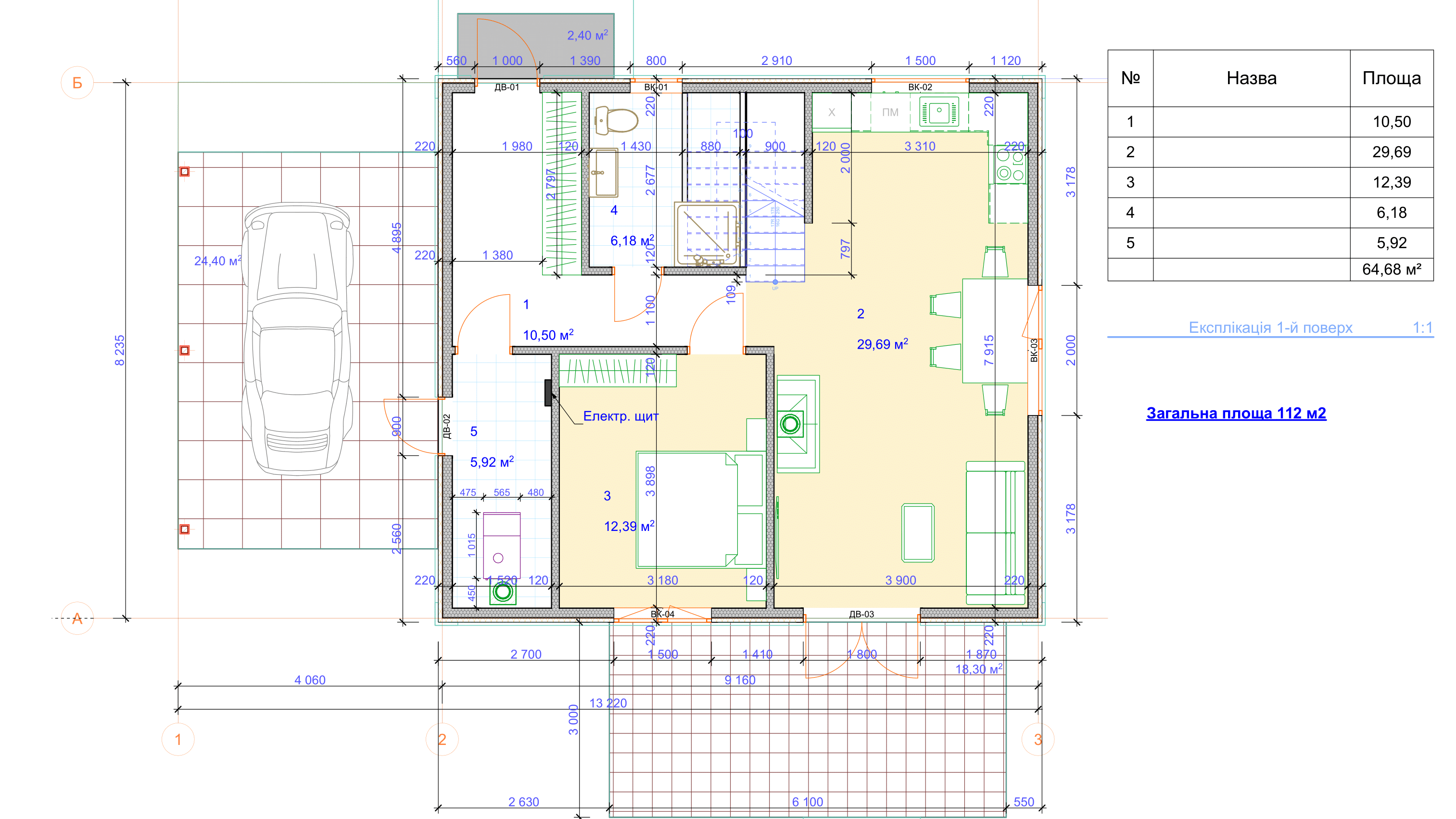
На першому поверсі знаходиться вітальня, що гармонійно об’єднана з просторою кухнею та столовою. Також, на першому поверсі знаходиться зручний санвузол та простора спальня, де мешканці можуть насолоджуватися затишком та приватністю.
Вітальня оздоблена стильним каміном, що додає особливої теплоти та розкоші вітальному простору.
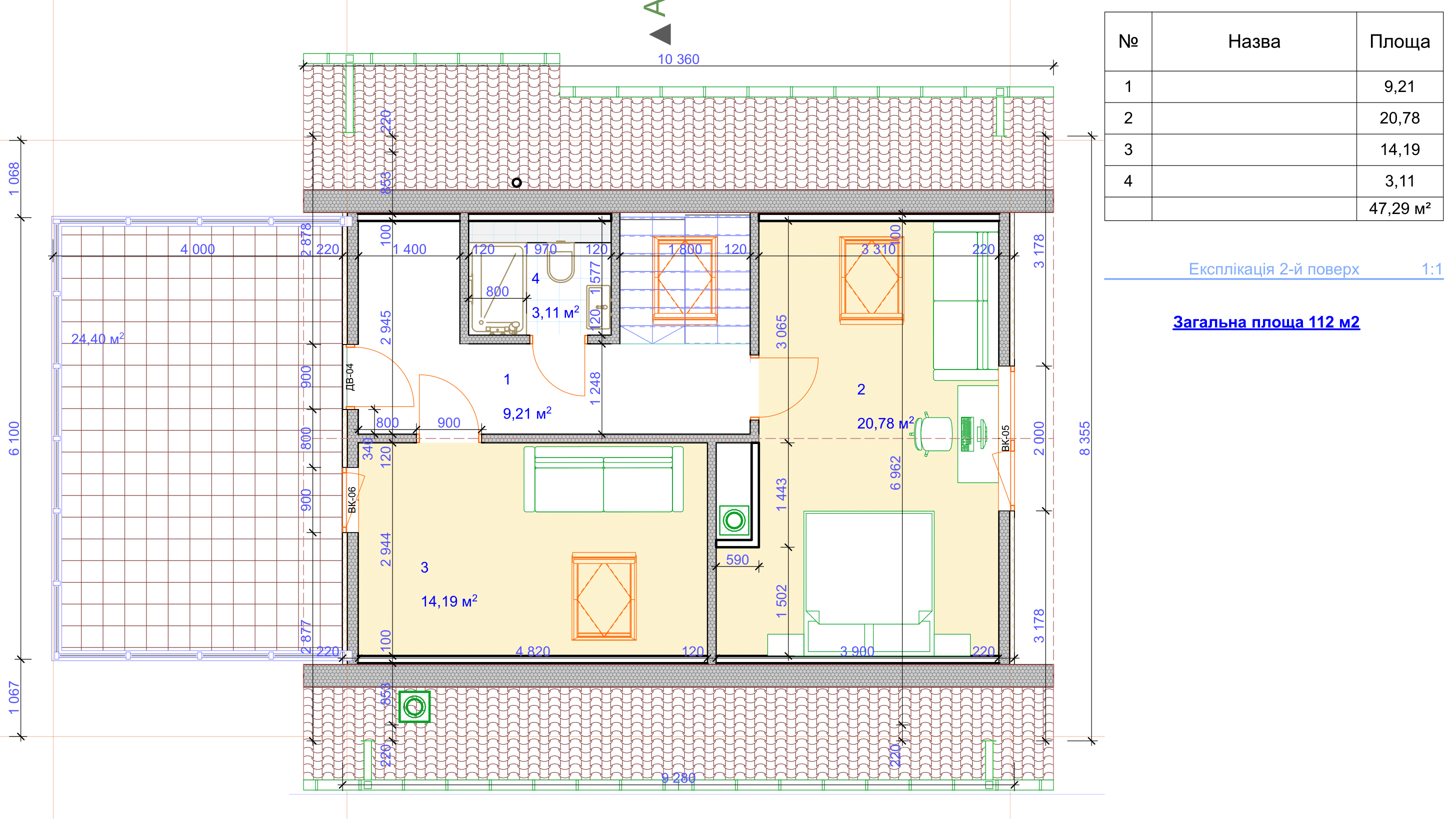
Другий поверх вражає своєю функціональністю та комфортом. На ньому розташовано затишний балкон, який також служить навісом для автомобіля, забезпечуючи зручне паркування та захист від погодних умов. Три мансардні вікна пропускають багато світла, роблячи приміщення ще більш привабливим та комфортним. Другий поверх також має дві просторі спальні кімнати та зручний санвузол.
У цьому проєкті кожна деталь продумана, щоб створити ідеальне поєднання функціональності, комфорту та естетики, роблячи цей котедж ідеальним місцем для життя його майбутніх власників.
Планування будинку “Осика – 112”
Перший поверх
Другий поверх


Телефон: