Проект Осейдж – 117
| Загальна площа | 117 м2 |
| Тераса | 23 м2 |
Проєкт двоповерхового будинку з мансардою та терасою загальною площею 117 м². Раціональне планування забезпечує зручність для постійного проживання сім’ї та зручно приймати гостей.
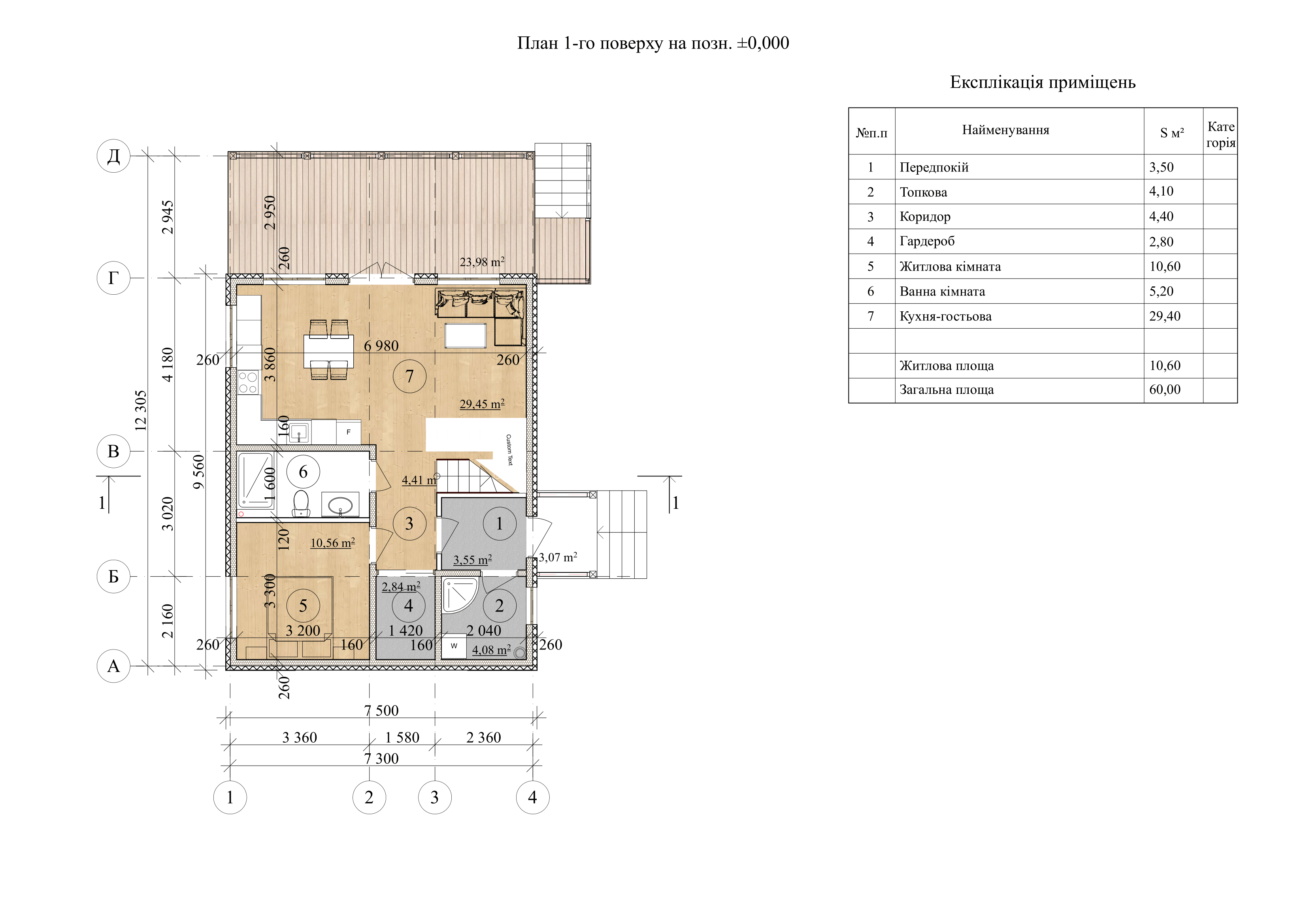
На першому поверсі передбачена простора кухня-вітальня площею майже 30 м² із виходом на терасу, окрема житлова кімната, ванна кімната, гардероб, передпокій і топкова. Така конфігурація дозволяє ефективно організувати щоденний побут.
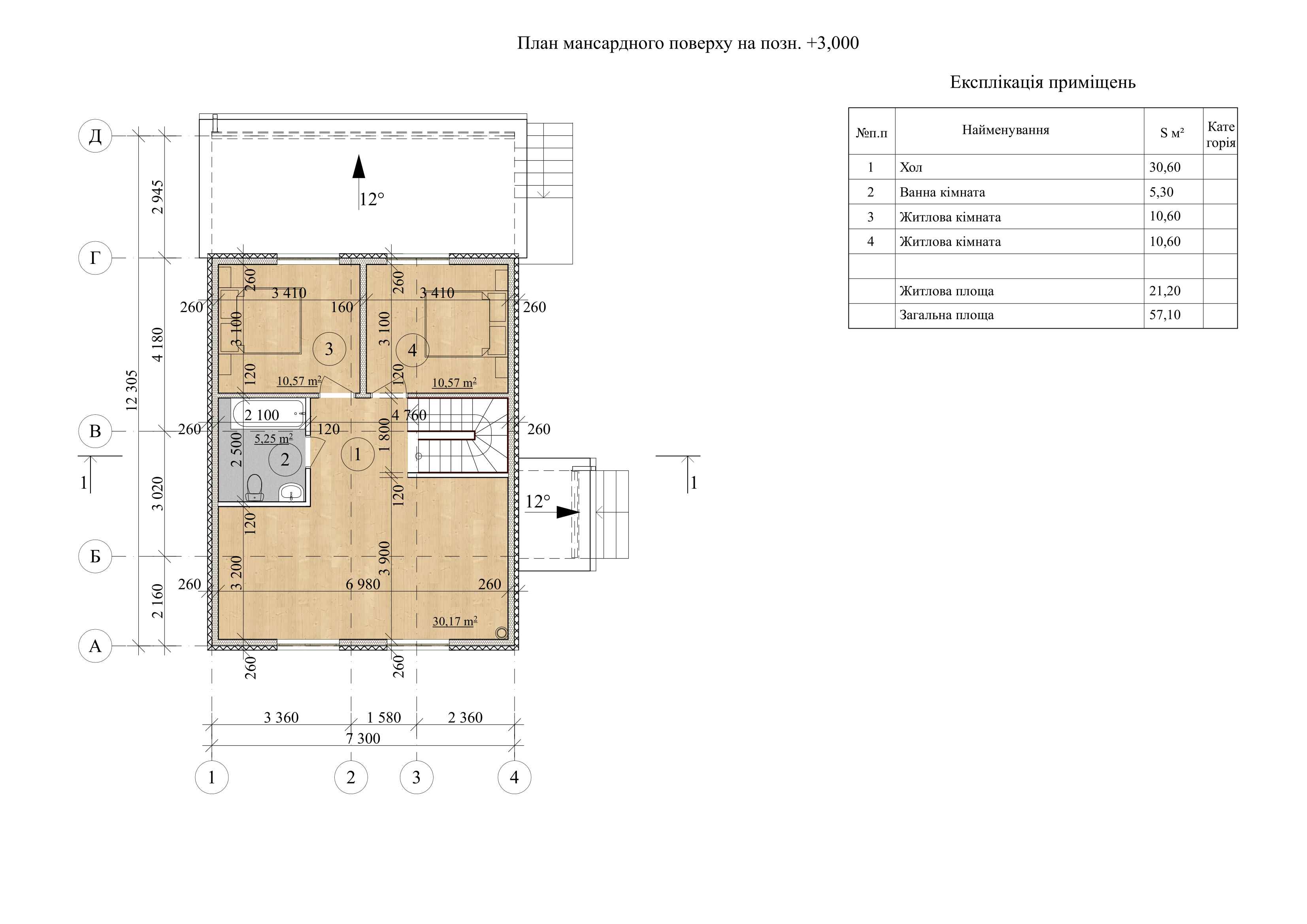
Мансардний поверх включає дві житлові кімнати, ванну кімнату та просторий хол площею понад 30 м², який можна використати як зону відпочинку або робочий кабінет.
Фасад будинку вирізняється лаконічністю та контрастним поєднанням світлих і темних відтінків. Відкрита тераса з навісом та прямим виходом у двір підкреслює заміський характер проєкту.
Проєкт «Осейдж» – сучасне та практичне рішення для тих, хто цінує простір, функціональність і природну гармонію.
Планування СІП-будинку “Осейдж – 117 м2”
Перший поверх

Другий поверх

Телефон: