Проект Обрій – 100
| Загальна площа | 100 м2 |
| Тераса | 18 м2 |
Проєкт будинку «Обрій» – це раціональне рішення для родини, яка цінує зручне планування та сучасний стиль. Загальна площа становить 100 м², де продумано кожен метр для комфортного щоденного життя.
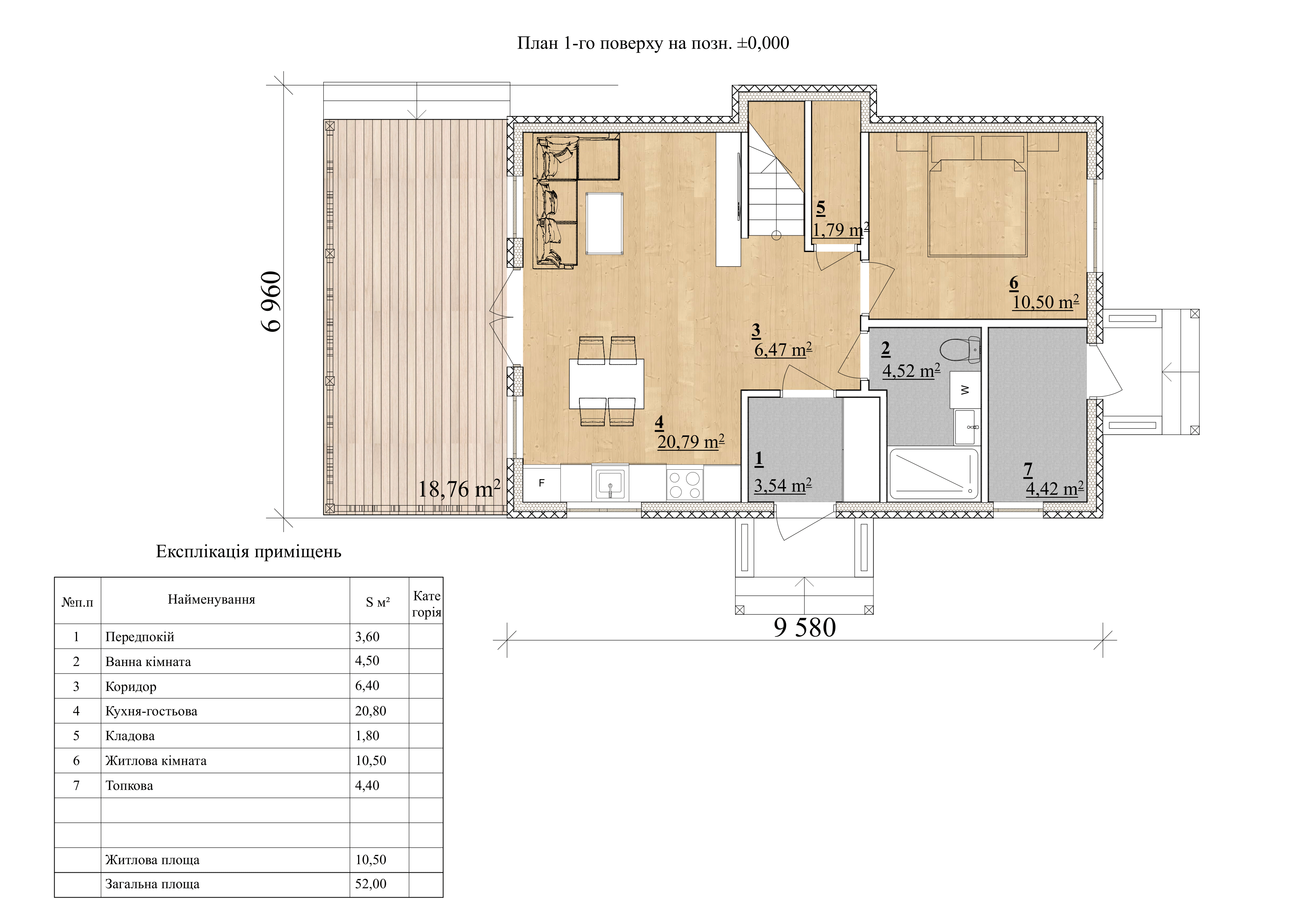
На першому поверсі розташовані простора кухня-вітальня площею понад 20 м² з виходом на терасу, ванна кімната, передпокій, комора та окрема житлова кімната. Завдяки зручному розташуванню приміщень, простір легко адаптувати під потреби мешканців.
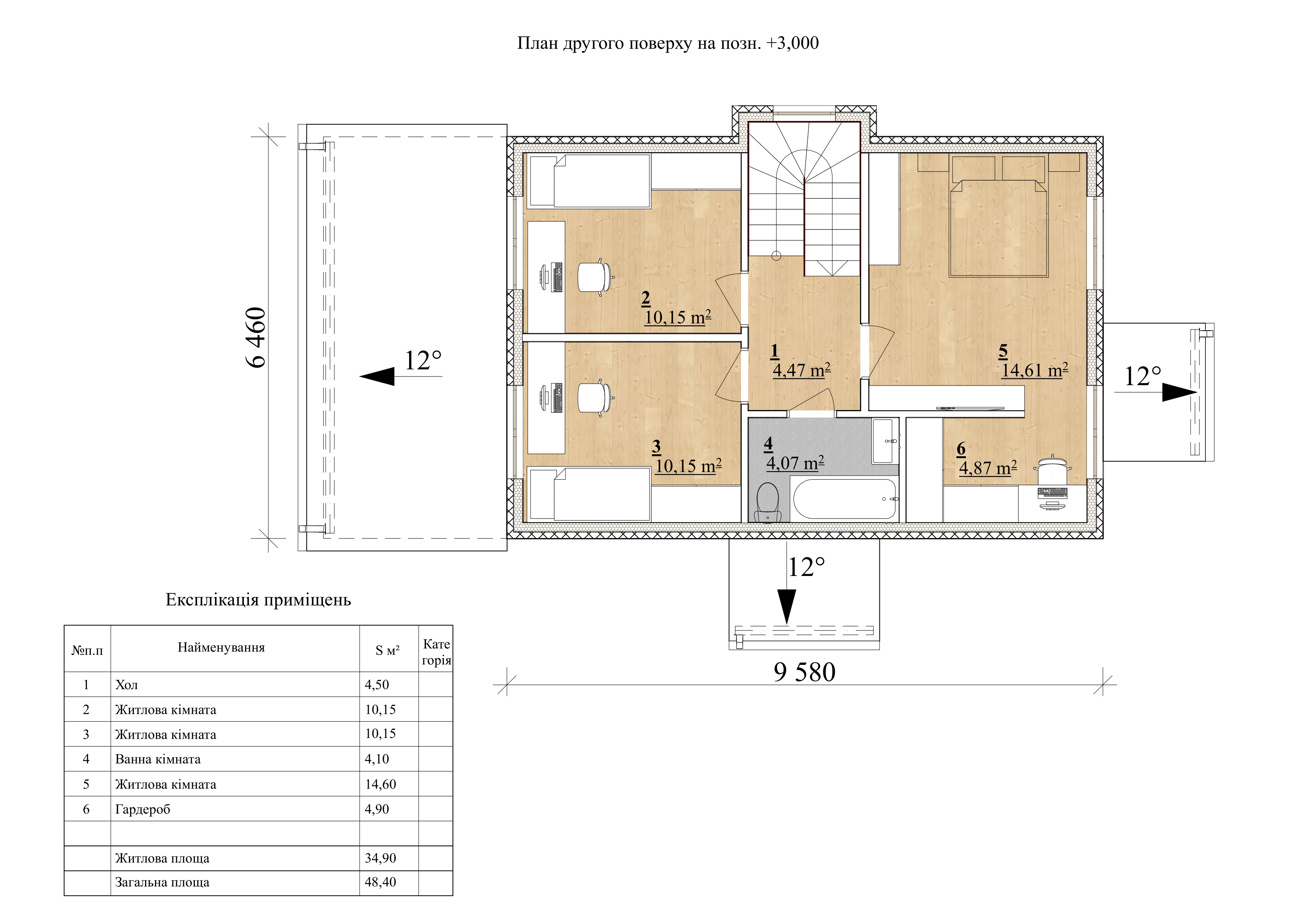
Другий поверх об’єднує три спальні, ванну кімнату та гардеробну. Тут достатньо місця як для дорослих, так і для дитячих кімнат чи кабінету.
Фасад будинку виконаний у спокійних світлих тонах із горизонтальними акцентами, що підкреслюють геометрію будівлі. Велика тераса та продумане розташування вікон забезпечують природне освітлення і створюють відчуття простору.
Будинок спроєктований для будівництва за технологією SIP-панелей, що гарантує енергоефективність, швидкі терміни монтажу та довговічність конструкцій.
Планування СІП-будинку “Обрій – 100 м2”
Перший поверх

Другий поверх

Телефон: