Проект Норд – 105
| Загальна площа | 105 м2 |
| Тераса | 20 м2 |
Проєкт «Норд – 105» – двоповерховий будинок у стилі barnhouse загальною площею 105 м². Компактний об’єм із двосхилим дахом доповнений панорамним склінням у фронтоні та відкритими терасами, тому будинок добре підходить для ділянки з видом на власний сад або лісосмугу.
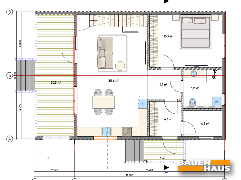
Планування першого поверху зосереджене навколо просторої кухні-вітальні (35,4 м²) із зоною «другого світла», що додає більше природного світла та відчуття простору. Тут передбачена окрема спальня (15,9 м²), санвузол (6,2 м²), тамбур/передпокій (4,1 м²) і господарське приміщення (4,2 м²) для котельні, пральні або зберігання. Вхід акцентований критим ґанком, а з боку вітальні запроєктована тераса 20,5 м² для відпочинку в теплий сезон.
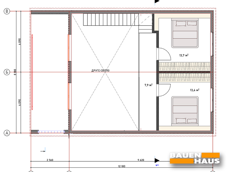
На другому поверсі – дві окремі спальні (13,7 м² та 13,4 м²) і хол (7,9 м²). Простір над вітальнею відкритий донизу (друге світло), що формує легшу геометрію інтер’єру та підходить для високих вікон і декоративного освітлення.
Фасадне рішення поєднує світле облицювання з вертикальними дерев’яними рейками та темними акцентами, тому проєкт виглядає стримано й сучасно та легко адаптується під різні кольори покрівлі й терасної дошки.
Планування СІП-будинку “Норд – 105 м2”
Перший поверх

Мансардний поверх

Телефон: