Проект Мальва – 69
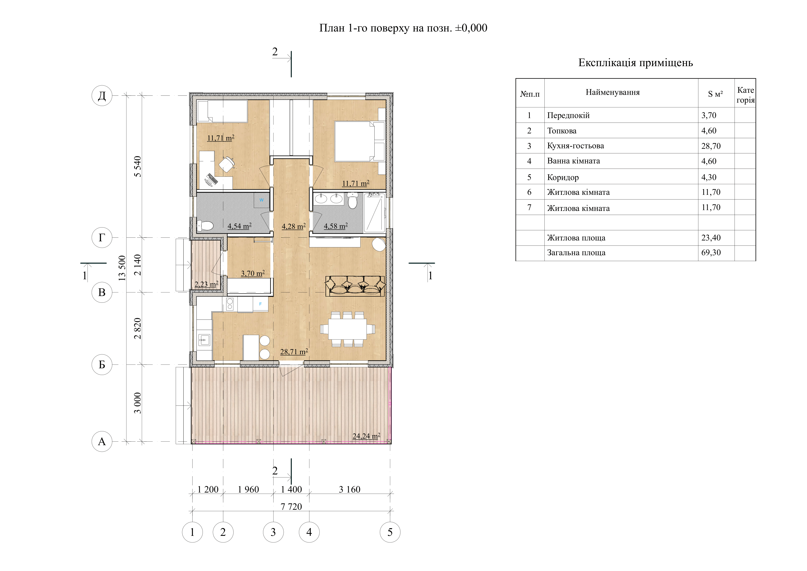
| Загальна площа | 69 м2 |
| Тераса | 24 м2 |
Проєкт одноповерхового будинку з СІП панелей «Мальва» створений для тих, хто шукає компактне, продумане рішення для постійного проживання або дачі. Планування будинку продумане та максимально ефективно використовує доступну площу 69,3 м².
У плануванні передбачено простору кухню-вітальню площею 28,7 м² із виходом на терасу, дві житлові кімнати, ванну, топкову, коридор і передпокій. Велика тераса вздовж фасаду стане зручним місцем для відпочинку на свіжому повітрі.
Зовнішній вигляд будинку виконаний у спокійному класичному стилі з двосхилим дахом і дерев’яними акцентами. Така архітектура гармонійно поєднується з природним оточенням і легко вписується у будь-який ландшафт.
Будинок за проєктом «Мальва» – практичне рішення для сімейної пари або невеликої родини, що цінує простоту, функціональність і затишок у сучасному форматі будівництва з СІП панелей.
Планування СІП-будинку “Мальва – 69 м2”

Телефон: