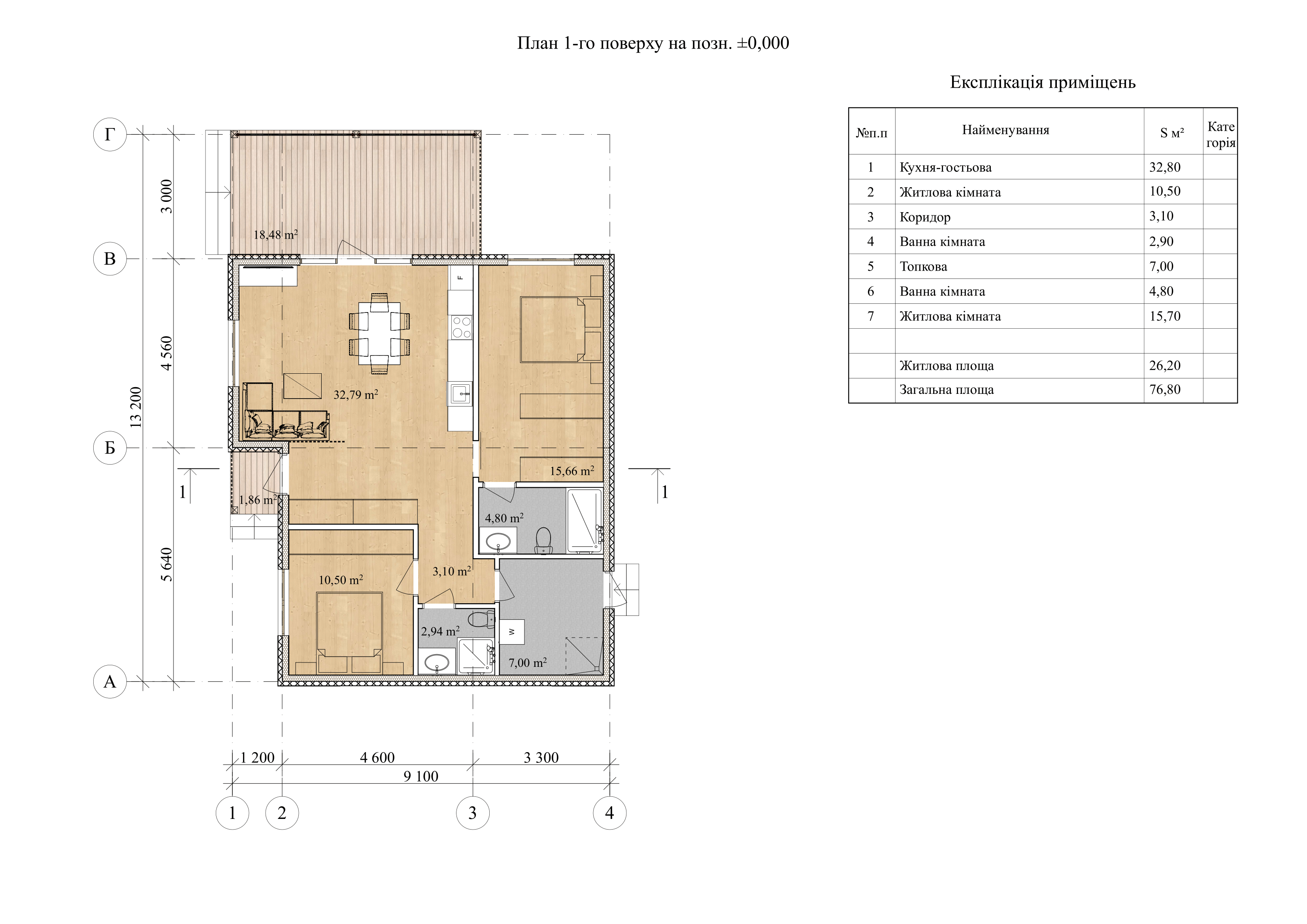
Проект Лума – 76
| Загальна площа | 76 м2 |
| Тераса | 18 м2 |
Проєкт будинку «Лума» – це одноповерхове рішення у сучасному стилі, спроєктоване під будівництво за нашою технологією з СІП панелей. Лаконічна архітектура з поєднанням світлих і дерев’яних фасадних елементів зробить будинок за цим проєктом чудовим рішенням для заміського життя.
Планування передбачає простору кухню-вітальню площею понад 32 м² з виходом на терасу. У проєкті є дві житлові кімнати, дві ванні, коридор та технічне приміщення. Завдяки раціональному розподілу площі в 76,8 м², будинок зручний для проживання невеликої сім’ї.
Особливу увагу приділено терасі – це додатковий простір для відпочинку на свіжому повітрі. Великі вікна забезпечують природне освітлення та візуально розширюють внутрішній простір.
Будівництво за технологією СІП панелей дозволяє досягти високої енергоефективності, швидких термінів зведення та надійності конструкцій.
Планування СІП-будинку “Лума – 76 м2”

Телефон: