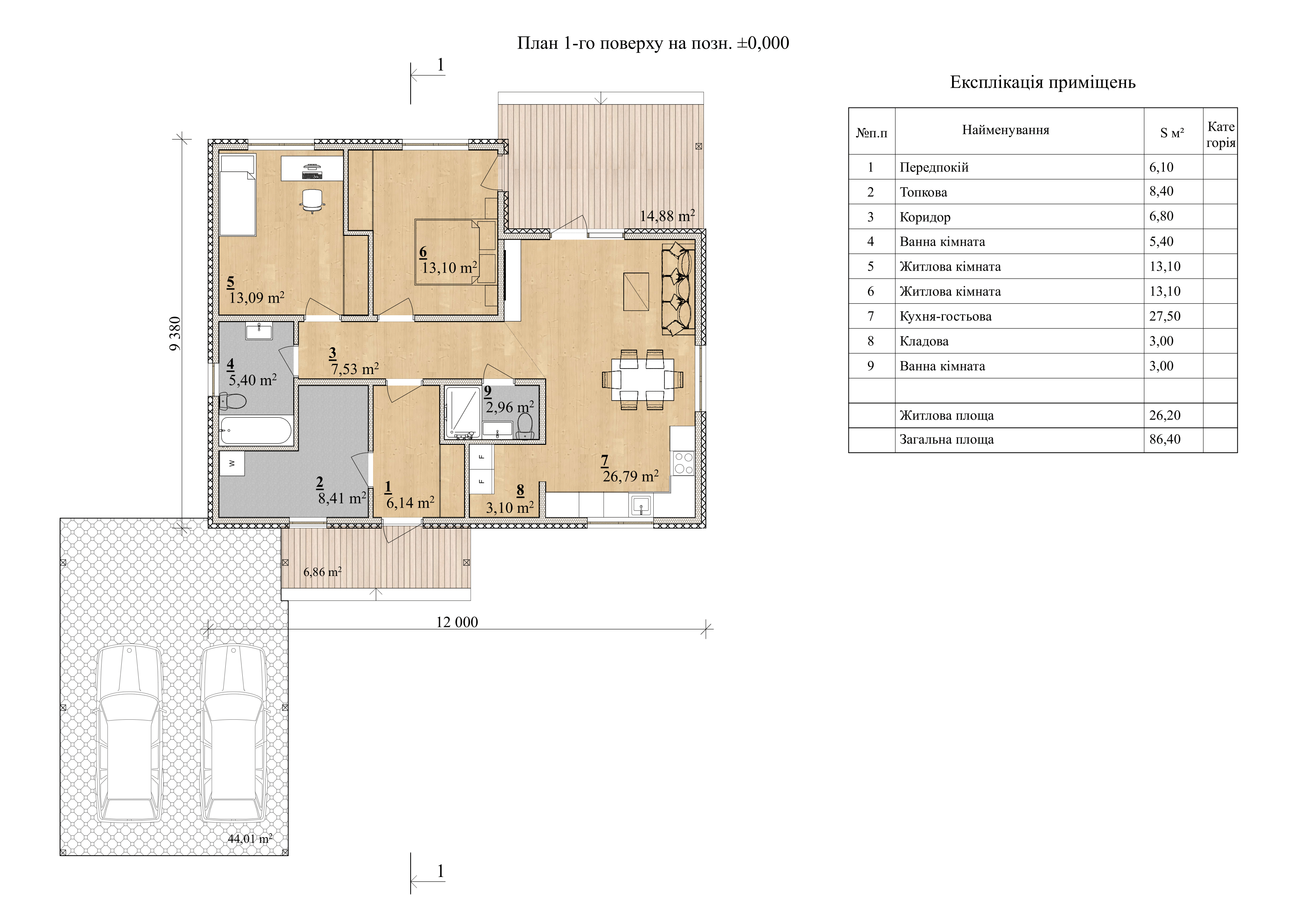
Проект Ларі – 86
| Загальна площа | 86,4 м2 |
| Тераса | 14,88 м2 |
Проєкт одноповерхового будинку «Ларі» створений для тих, хто шукає сучасне й раціональне рішення для життя. Лаконічна архітектура з плоским дахом гармонійно поєднується з великими вікнами. Вихід на терасу робить простір світлим і відкритим.
Загальна площа будинку становить 86,4 м², серед яких передбачено дві житлові кімнати по 13 м², простору кухню-вітальню площею майже 27,5 м², дві ванні кімнати, топкову та коридор. Додатково є комора для зберігання речей. Такий план дозволяє організувати зручний побут для сім’ї з 2–4 осіб.
Тераса площею понад 14 м² стає продовженням житлового простору та ідеально підходить для відпочинку на свіжому повітрі. Зовні будинок вирізняється сучасним стилем, а компактні розміри роблять його вдалим рішенням як для міської ділянки, так і для заміського життя.
Будинок запроєктований під будівництво з СІП панелей – технології, яка забезпечує високу енергоефективність, швидкий монтаж та довговічність. Це означає мінімальні витрати на опалення та комфортні умови проживання у будь-яку пору року.
Планування СІП-будинку “Ларі – 86 м2”

Телефон: