Проект Конвалія – 87
| Загальна площа | 87 м2 |
| Тераса | 12 м2 |
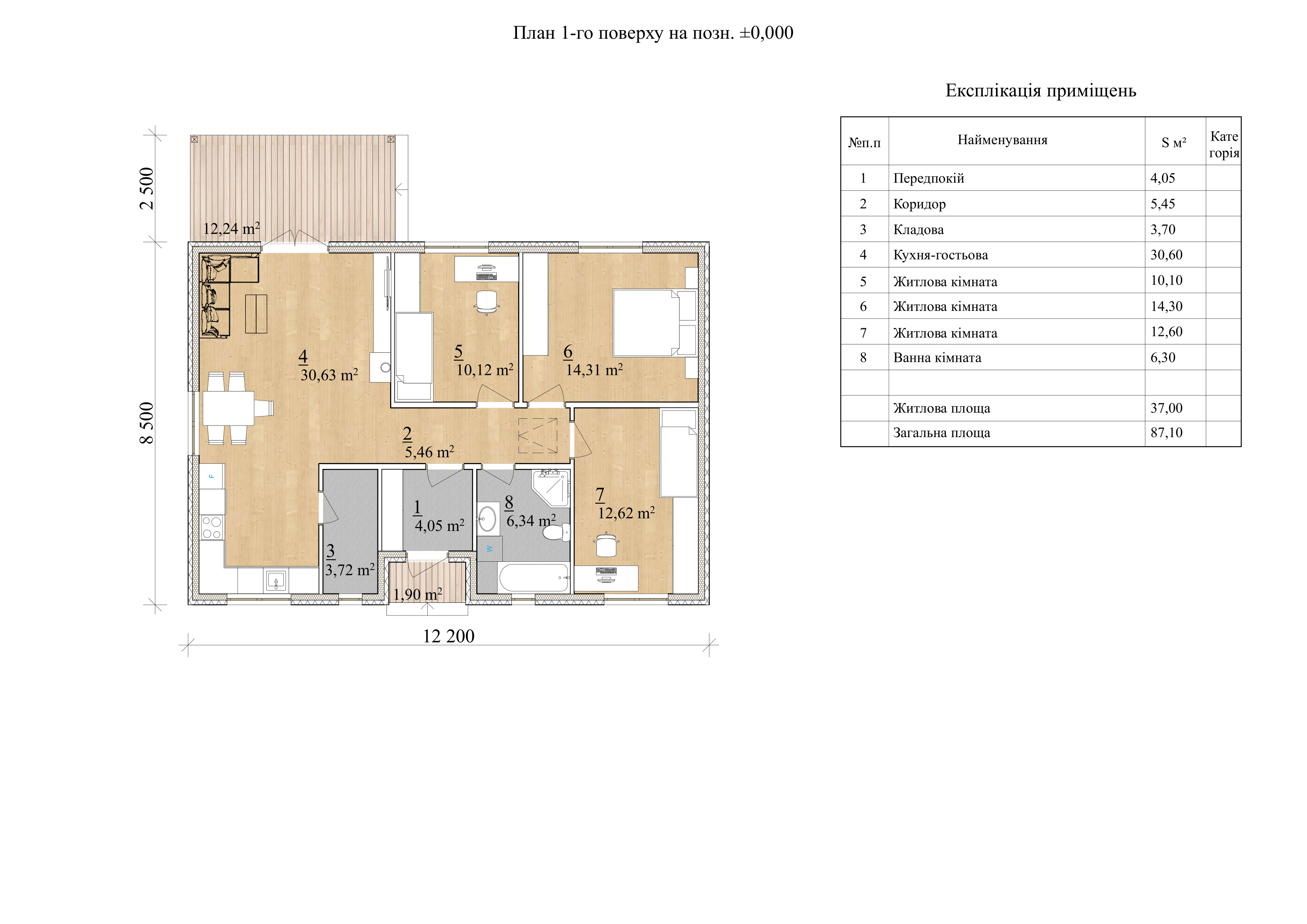
Проєкт «Конвалія» – одноповерховий будинок площею 87 м² для родини з 3–4 осіб. Проста прямокутна форма та двосхилий дах роблять його раціональним у будівництві та експлуатації. Центральне місце займає простора кухня гостьова площею понад 30 м² з окремими зонами приготування їжі, обіднім столом і місцем для відпочинку, з виходом на відкрите подвір’я та терасу, де зручно проводити час у теплу пору року.
У приватній частині розміщені три окремі житлові кімнати площею від 10 до 14 м² – їх можна організувати як батьківську спальню, дитячі або кабінет. Поряд знаходиться ванна кімната близько 6 м², достатня для розміщення ванни чи душової, пральної машини та шаф для зберігання. При вході передбачені передпокій і коридор з місцем для шаф, а також окрема кладова, яку можна використати як господарське приміщення або гардероб.
Фасади виконані у стриманих теплих тонах з контрастними темними елементами, будинок має захищений ганок і акуратні пропорції, що добре виглядають на ділянці різної форми. «Конвалія» запроєктована з урахуванням технології будівництва з СІП панелей Бауен Хаус, що дає змогу скоротити строки зведення, отримати енергоефективні огороджувальні конструкції та передбачувані експлуатаційні витрати.
Планування СІП-будинку “Конвалія – 87 м2”

Телефон: