Проект Клематис – 112
| Загальна площа | 112 кв.м |
| Тераса | 21 кв. м |
| Кількість кімнат | 3 |
Проєкт будинку в один поверх з горищем та терасою об’єднує в собі комфорт, функціональність та сучасний дизайн для вашого затишку та зручності.
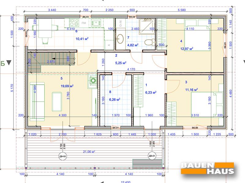
План першого поверху:
- Великі спальні кімнати: Два просторі та світлі спальні приміщення забезпечать вам максимальний комфорт та приватність.
- Окрема кухня: Сучасна кухня з ергономічним розташуванням і робочою поверхнею дозволить вам з легкістю готувати смачні страви для вашої сім’ї та гостей.
- Вітальня – це ідеальне місце для відпочинку та розваг. Вона відкривається на простору терасу, створюючи відчуття єдності з природою і забезпечуючи чудовий краєвид на власне подвірʼя.
- Санвузол обладнаний усіма необхідними зручностями.
- Котельна: У будинку передбачена котельня для опалення та гарячого водопостачання, що забезпечує ефективну роботу системи опалення та зручне господарське обслуговування.
Горище та тераса:
Горище цього будинку – це зручне місце для зберігання різних речей, а також для можливого розширення житлового простору в майбутньому. Тераса, яка відкривається з вітальні, стане вашим улюбленим місцем для вечірнього відпочинку або спілкування з друзями та родиною.
Дизайн:
Дизайн цього будинку враховує сучасні тенденції та зручності для життя. Використання природних матеріалів, якість обробки та ретельно розроблена планування забезпечують вам стильний і функціональний простір для життя.
Загалом, проєкт цього будинку об’єднує всі необхідні елементи для комфортного та сучасного життя. Він створений, щоб забезпечити вам затишок, просторе проживання та незабутні моменти, які ви будете пам’ятати протягом багатьох років.
Планування будинку “Клематис – 112”
Перший поверх

Телефон: