Проект Киев – 167
| Загальна площа | 167 |
| Тераса | Есть |
Стильный, современный проект двухэтажного дома общей площадью 167 кв.м.
Архитектор – Татьяна Пономаренко
Архитектурное ателье – “Art of Future”
В 2019 году нашей партнерской компанией данный проект реализован из газобетона.
Специалистами Бауен Хаус проект может быть построен из СИП панелей.
Закажите просчет стоимости строительства из СИП панелей или газоблока.
Проект большого дома из газобетона Киев – 167 кв. м
План первого этажа

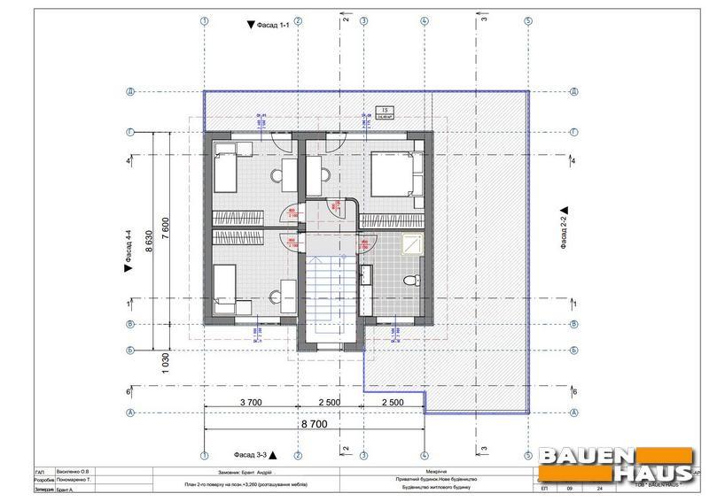
План второго этажа

Телефон: