| Загальна площа | 208,55 |
| Тераса | Есть |
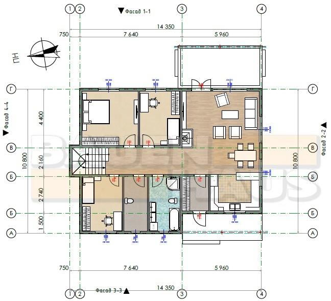
План першого поверху 126,15 кв. м (горищне перекриття 72,26 кв. м)

Сучасний двоповерховий будинок із СІП панелей
| Загальна площа | 208,55 |
| Площа забудови | — |
| Кут нахилу даху | — |
| Площа даху | 237,4 |
| Площа віконних отворів | 42,45 |
| Площа фасаду | 210 |
| Площа тераси | 29,4 |
Оплата зручними частинами і лише за виконані роботи
| Зразок оплат |
| Зручна частина – під час підписання Договору |
| Зручна частина – перед початком фундаментних робіт |
| Зручна частина – перед початком виробництва домокомплекту |
| Зручна частина – перед початком будівельно-монтажних робіт |
| Зручна частина – за фактом 50% виконаних будівельно-монтажних робіт |
| Остання частина – за фактом виконаних всіх робіт |
BAUEN HAUS - производственно-строительная компания.
ул. Васильковская, 28 03118 Киев,
BAUEN HAUS 
Телефон:
+38 (044) 334 31 84, DIRECTOR:
+38 (044) 232 48 84, VIBER:
+38 (050) 442 99 77, Электронная почта:
info@bauenhaus.ua