Проект Карнегія – 83
| Загальна площа | 83 кв. м |
| Тераса | 26 кв. м |
Проєкт Карнегія 83 від компанії Bauen Haus – мансардний будинок з СІП панелей загальною площею 83 м². Цей архітектурний проєкт поєднує в собі функціональність і простоту, забезпечуючи всі необхідні умови для комфортного життя.
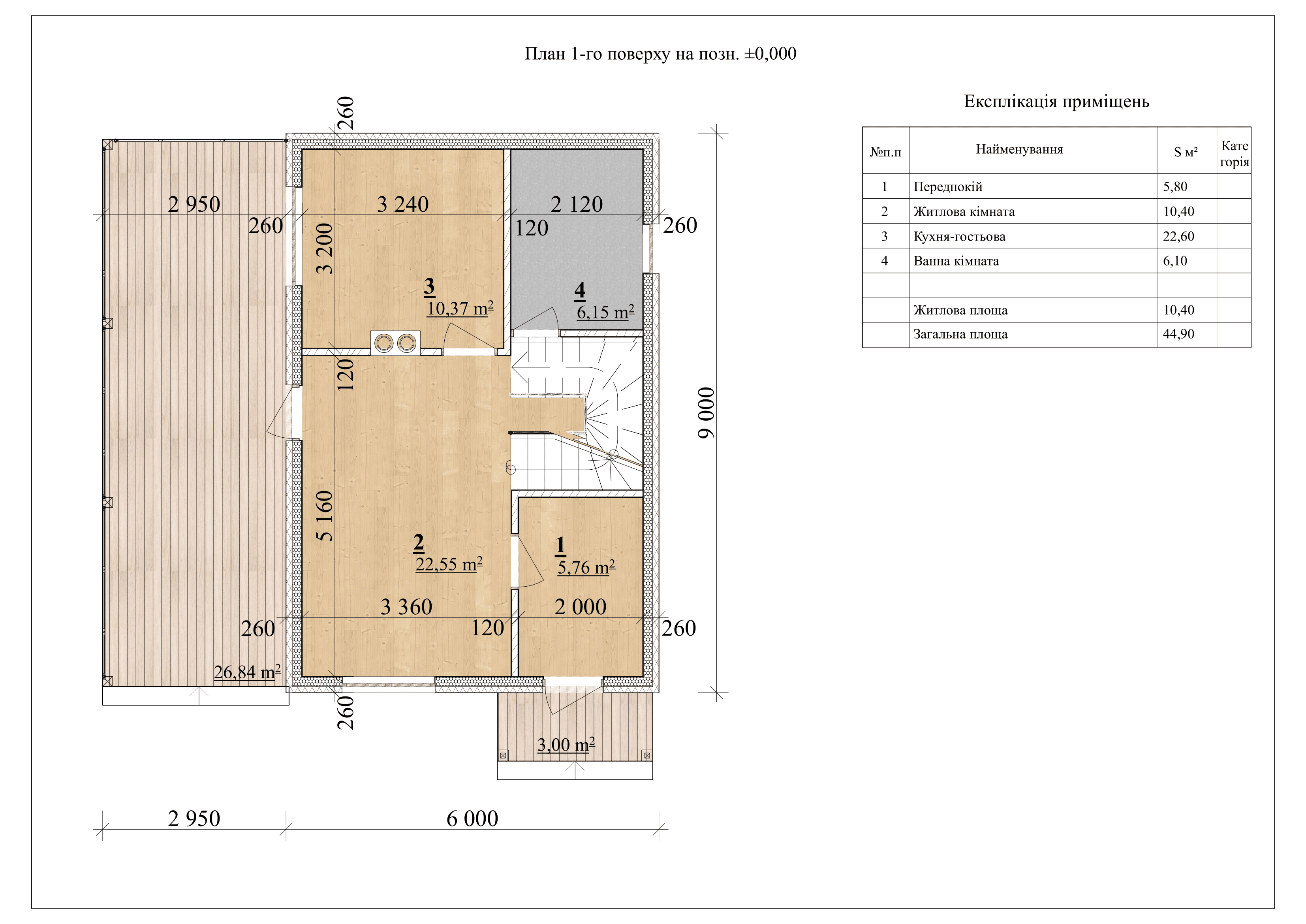
На першому поверсі передбачено розташування кухні-столової, де можна зручно готувати та приймати гостей. Ванна кімната спроєктована з урахуванням всіх сучасних вимог до гігієнічних приміщень. Окрема кімната може слугувати вітальнею. Просторий передпокій зручний для розміщення верхнього одягу та взуття.
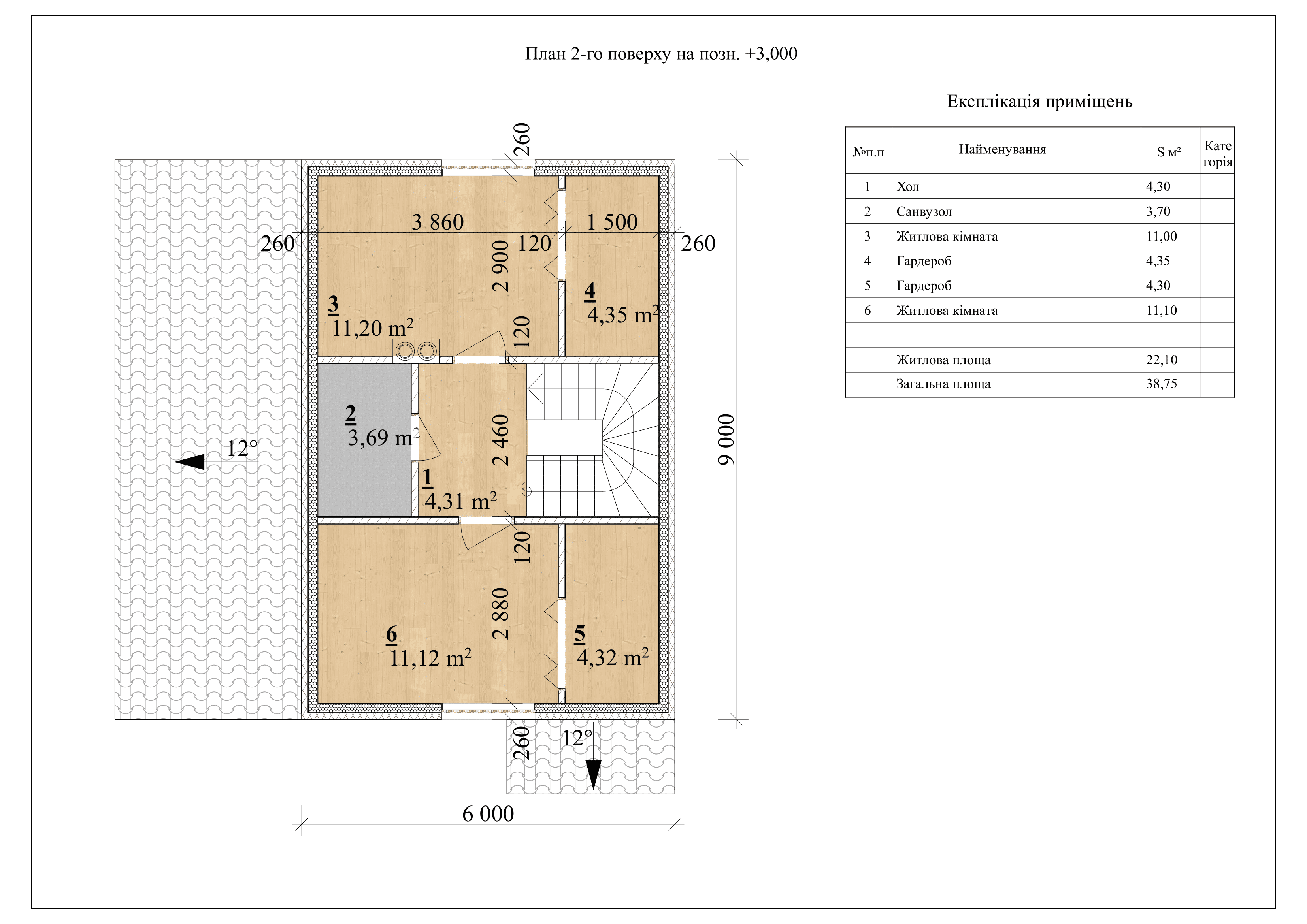
Другий поверх спроєктовано для максимального використання простору. Тут розташовані дві окремі кімнати, що можуть бути використані як дитячі або гостьові спальні. Санвузол зручно розташований для мешканців другого поверху. Хол створює додатковий простір для відпочинку або зберігання речей. Два гардероби забезпечують достатньо місця для зберігання одягу та інших речей.
Цей архітектурний проєкт передбачає використання СІП панелей для будівництва, що забезпечують високий рівень теплоізоляції. Це дозволяє підтримувати оптимальний мікроклімат всередині приміщення протягом усього року. Крім того, застосування СІП панелей сприяє швидкому монтажу будинку, що скорочує терміни будівництва.
Проєкт мансардного будинку Карнегія площею 83 м² від Bauen Haus – це поєднання сучасних будівельних технологій та ретельного планування, що робить його практичним вибором для тих, хто цінує зручність і функціональність.
Планування СІП-будинку “Карнегія – 83”
Перший поверх

Другий поверх

Телефон: