Проект Каланте – 145
| Загальна площа | 145 кв. м |
| Тераса | 18 кв. м |
| Кількість кімнат | 3 |
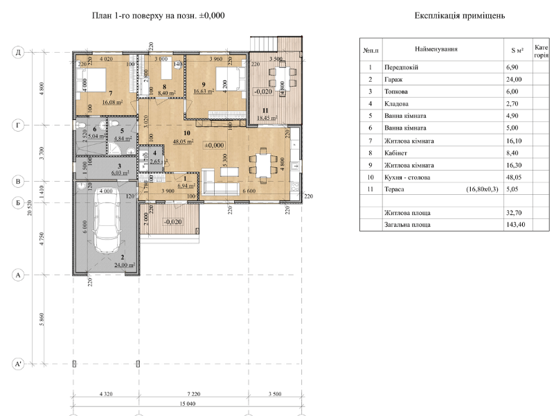
Новий проєкт від компанії Bauen Haus – це одноповерховий будинок з СІП панелей, який відзначається своєю функціональністю та простором. Загальна площа будинку складає 145 квадратних метрів, що є зручною площею для одноповерхового будинку. Планування будинку дуже розумне та ергономічне, воно включає кухню, столову, три кімнати, два санвузли, гараж, кабінет, передпокій, хол, топкову, кладову та терасу.
Дизайн будинку вражає своєю простотою та лаконічністю, що дозволяє йому гармонійно вписуватися в будь-який ландшафт і навколишнє середовище. Використання СІП панелей дозволить забезпечити відмінну теплоізоляцію та енергоефективність будинку, що робить його екологічно чистим та досить економічним в експлуатації.
Внутрішнє оформлення будинку виконане у мінімалістичному стилі, що створює атмосферу спокою та гармонії. Великі вікна пропускають багато природного світла в приміщення, що створює відчуття простору та затишку.
Цей проєкт будинку ідеально підійде тим, хто цінує простоту та функціональність у дизайні, а також хоче жити в екологічно чистому та енергоефективному будинку.
Планування СІП-будинку “Каланте – 145 м2”
Ширина – 15 м
Довжина – 20,5 м

Телефон: