Проект Іванків – 170
| Загальна площа | 170 м2 |
| Тераса | 17 м2 |
Цей двоповерховий будинок за канадською технологією площею 170 м² створений для сімей, які цінують функціональність та раціональне використання простору. Лаконічна архітектура з чіткими лініями, спокійна кольорова гамма фасаду та поєднання декоративної штукатурки з акцентами під камінь роблять проєкт сучасним рішенням.
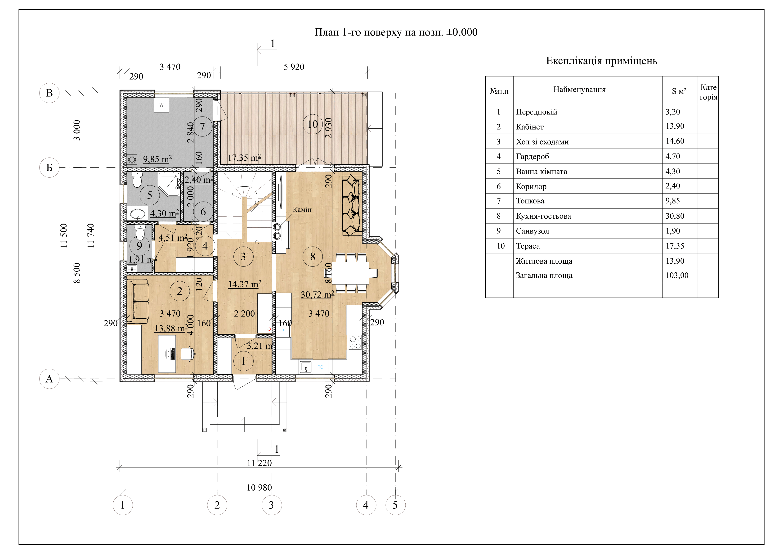
Перший поверх передбачає простору кухню-вітальню площею понад 30 м² з каміном та виходом на затишну терасу. Також тут розташований кабінет, ванна кімната, санвузол, топкова та господарські приміщення.
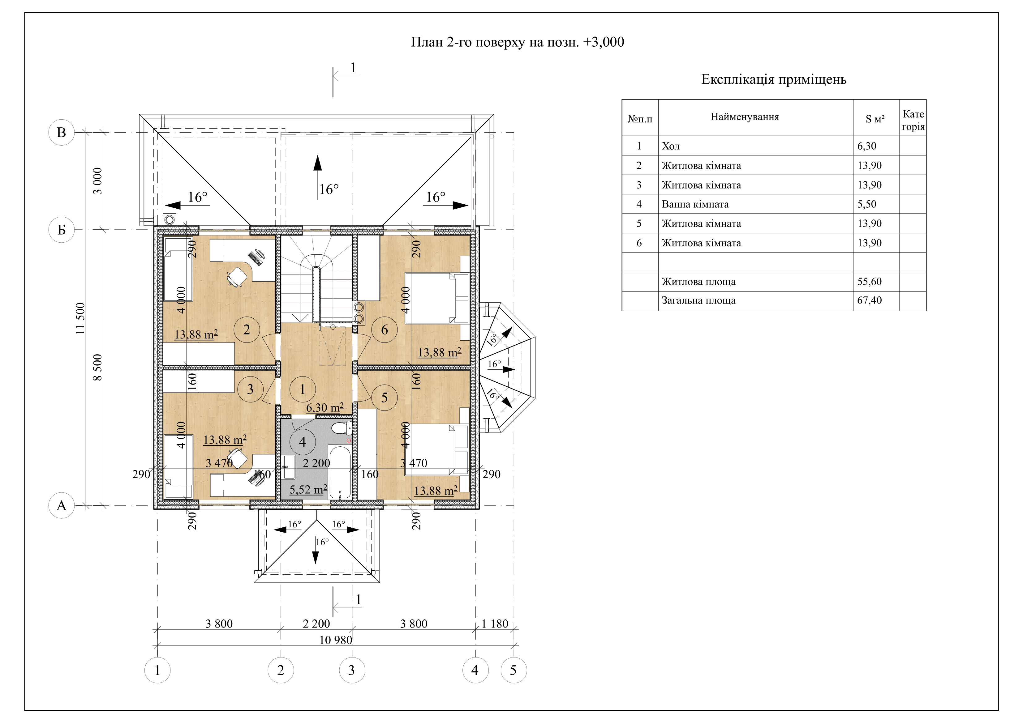
На другому поверсі сплановано чотири житлові кімнати площею по 13,9 м² кожна, додаткову ванну та хол. Завдяки такому плануванню кожен член сім’ї отримує власний простір, а зручне розташування кімнат забезпечує комфортне проживання.
Будинок поєднує компактність і простору організацію внутрішніх приміщень, що робить його практичним вибором для постійного проживання та комфортного заміського життя.
Планування СІП-будинку “Іванків – 170 м2”
Перший поверх

Другий поверх

Телефон: