Проект Гаврилівка – 101
| Загальна площа | 101 |
| Тераса | Є |
Проект двоповерхового будинку за СІП технологією загальною площею 101 м2.
Проект будинку із СІП панелей Гаврилівка – 101 м2
План першого поверху

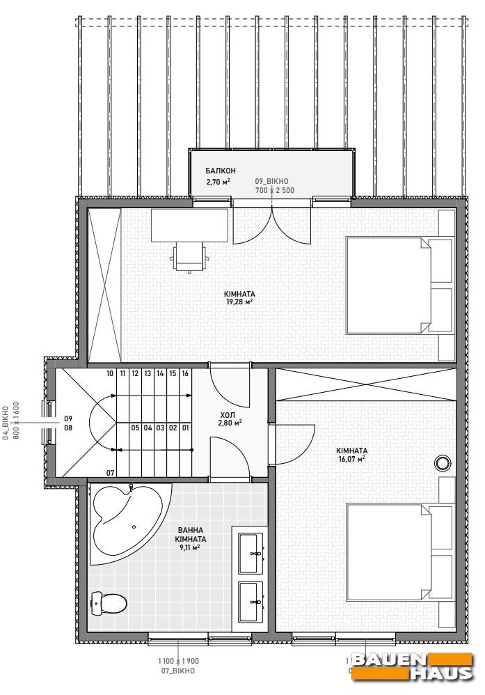
План другого поверху

| Загальна площа | 101 |
| Тераса | Є |
Проект двоповерхового будинку за СІП технологією загальною площею 101 м2.

