Проект Десна – 56
| Загальна площа | 56 м2 |
| Тераса | 11 м2 |
«Десна 56» – це компактний і бюджетний будинок, створений у рамках нашої добірки SMART DACHA. Завдяки продуманому плануванню у невеликих габаритах вдалося розмістити все необхідне для комфортного відпочинку за містом.
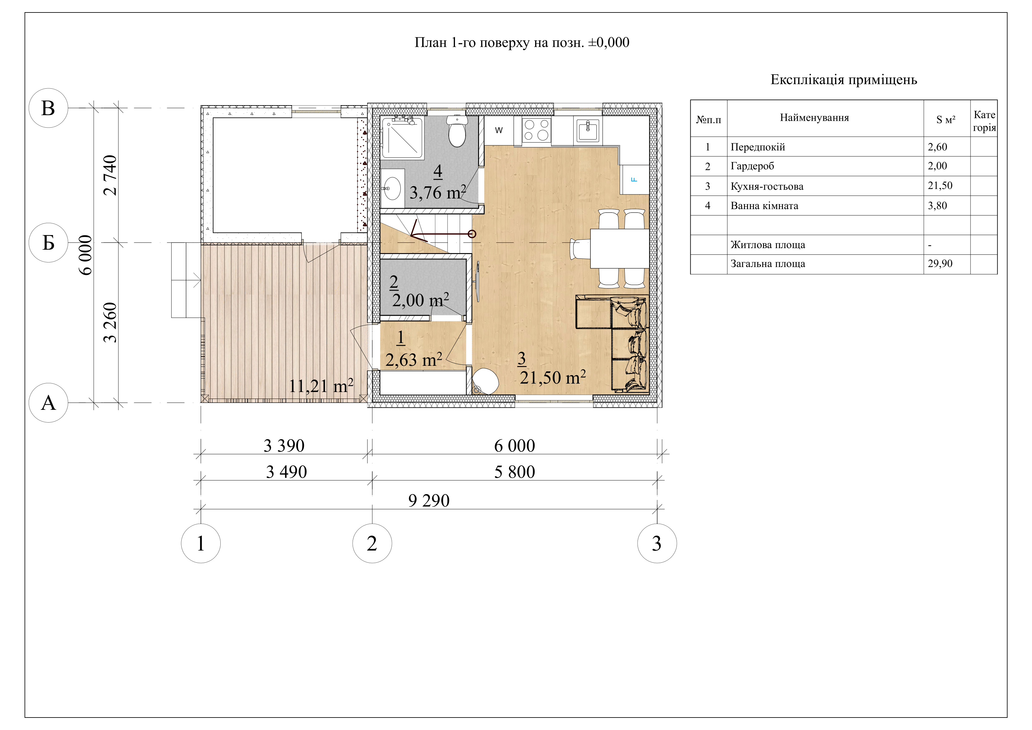
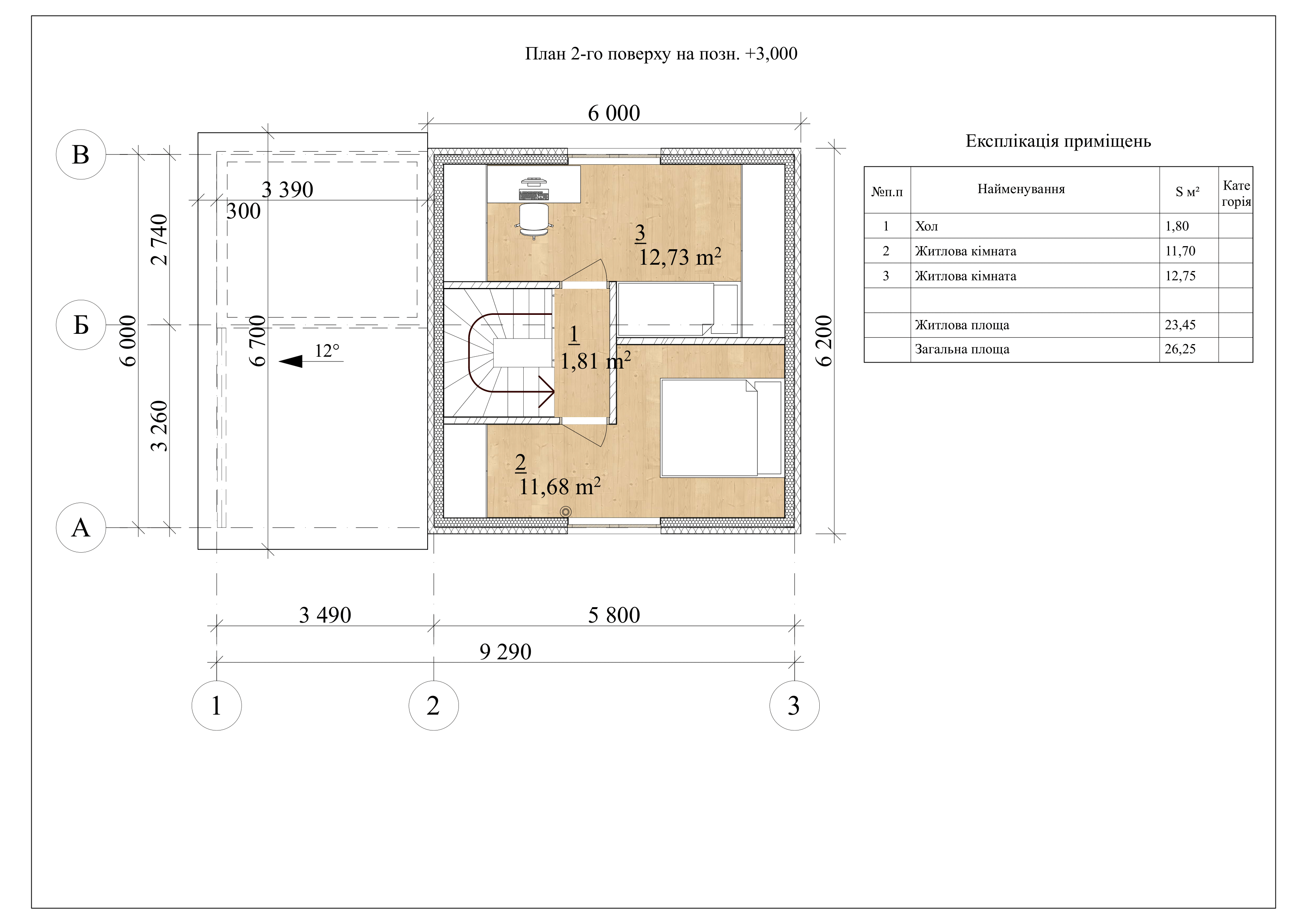
На першому поверсі передбачено кухню-вітальню площею понад 21 м², ванну кімнату, гардероб і передпокій, а також зручну терасу для літніх вечорів. На другому поверсі розташовані дві спальні, що забезпечують окремий простір для членів сім’ї чи гостей.
Загальна площа проєкту становить 56 м², при цьому будинок виглядає сучасно й акуратно завдяки лаконічному фасаду. Це оптимальне рішення як для сезонного використання, так і для облаштування невеликої дачі з усіма зручностями.
Планування СІП-будинку “Десна – 56 м2”
Перший поверх

Другий поверх

Телефон: