Проект Будлея – 80
| Загальна площа | 80,65 м2 |
| Тераса | 44,55 м2 |
Проєкт Будлея 80 м2 – це сучасне рішення для компактних і вузьких ділянок, що поєднує комфортне планування та стильний архітектурний вигляд. Завдяки продуманій ергономіці, цей будинок максимально використовує корисний простір, забезпечуючи зручність для мешканців.
Основні характеристики:
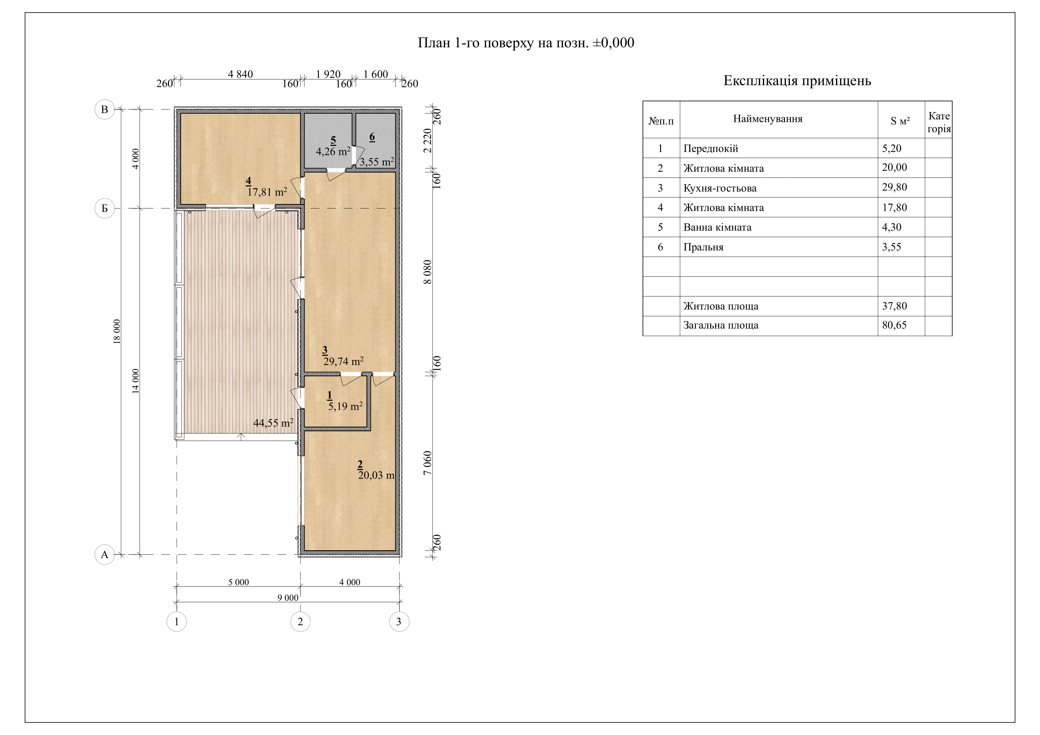
- Загальна площа – 80,65 м²
- Житлова площа – 37,80 м²
- Кількість кімнат – 2 житлові кімнати + кухня-вітальня
- Тераса – простора зона для відпочинку на свіжому повітрі
Планування:
Проєкт передбачає зону відкритого простору, що включає кухню-вітальню (29,8 м²) з виходом на терасу. Дві житлові кімнати (20 м² та 17,8 м²) розташовані таким чином, щоб забезпечити спокій та приватність. У будинку також є ванна кімната (4,3 м²) та пральня (3,55 м²), що в наш час вже є необхідністю у повсякденному житті.
Дизайн та особливості:
Архітектура будинку виконана у мінімалістичному стилі, із застосуванням якісних матеріалів. Світлі фасади поєднуються з дерев’яними акцентами, а великі панорамні вікна наповнюють приміщення природним світлом. Простора тераса буде ідеальним місцем для сімейного відпочинку в теплі пори року.
Переваги:
- Оптимальне рішення для вузької ділянки – проєкт враховує особливості забудови на обмеженій площі
- Раціональне використання простору – комфортне зонування приміщень без зайвих коридорів
- Швидке будівництво – застосування сучасних технологій дозволяє звести будинок у короткі терміни
Планування СІП-будинку “Будлея – 80”

Телефон: