Проект житлового СІП будинку Бровари 105 м2 | Bauen Haus

Проект Бровари – 105

Загальна площа 105
Тераса Есть

Дізнайтесь вартість будівництва

Надрукувати

Проект двоповерхового будинку Бровари – 105 м2


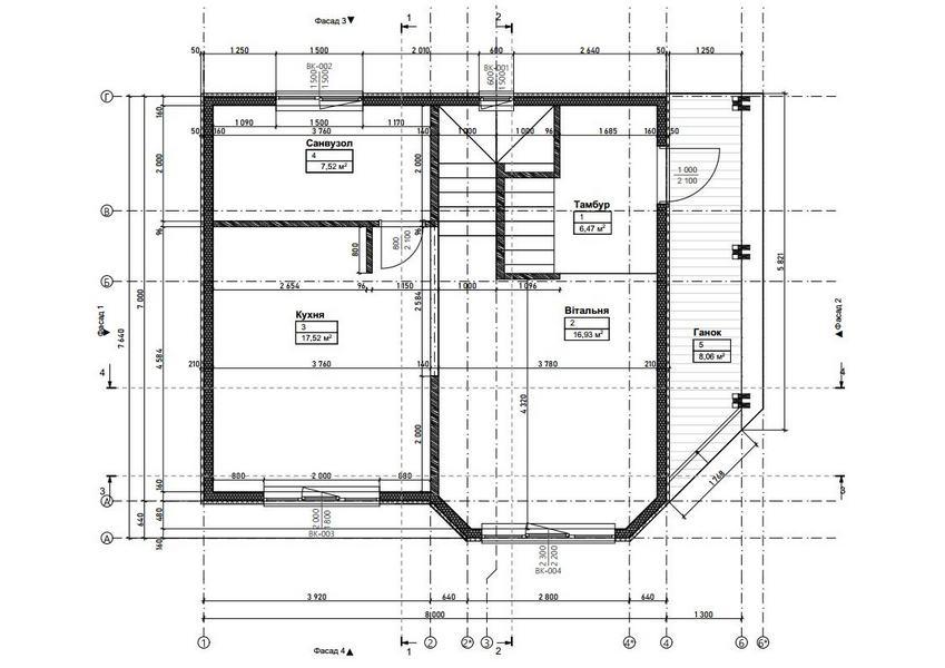
План першого поверху

План первого этажа


План другого поверху

План второго этажа

Надрукувати
BAUEN HAUS - производственно-строительная компания.
ул. Васильковская, 28 03118 Киев,
logo Телефон: +38 (044) 334 31 84, DIRECTOR: +38 (044) 232 48 84, VIBER: +38 (050) 442 99 77, Электронная почта: info@bauenhaus.ua