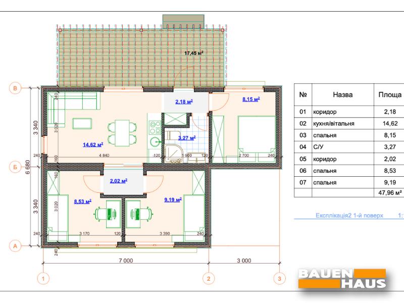
Проект Bauen Module II – 48
| Загальна площа | 48 кв. м |
| Тераса | Есть, 17,5 кв. м |
| Кут нахилу даху | Плоская |
| Кількість кімнат | 3 |
Второй проект модульного дома общей площадью 48 м2. В этой компактной площади получилось уместить целых 3 спальни и совмещенную гостиную с кухней. Дом по этому проекту отлично подойдет для постоянного проживания семьи с детьми.
Важно заметить, что дом по этому проекту можно построить как мобильный дом – это позволит, при необходимости, перевозить его на новое место.
Планировка модульного СИП-дома “Модуль II – 48”

Телефон: