Проєкт Bauen Module I – 28
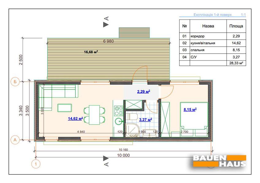
| Загальна площа | 28 кв. м |
| Кількість кімнат | 2 |
У ціну входить:
Модуль + зовнішнє оздоблення
- Комплект стін, підлоги, даху – стіни СІП 160 мм, дах СІП 160 мм, підлога СІП 160 мм;
- Монтаж – будівельно-монтажні роботи зі складання модулю;
- Фасад – захист зовнішніх СІП панелей вітровим бар’єром (колір чорний). Оздоблення метал + дерево за проєктом;
- Вікна – металопластикові вікна, двері WDS 6S, двокамерний склопакет, фурнітура;
- Дах – ПВХ мембрана, кріпильні елементи, прижимні оцинковані планки, воронка водозливна. Система водовідведення, воронка, жолоб.
Внутрішнє оздоблення
- Електрика – розводка електропроводки, встановлення підрозетників, розеток, світильників, вентилятора;
- Сантехніка – відкрита розводка водоводу, каналізації;
- Гіпсокартон – 12,5 мм монтаж вологостійкого гіпсокартону ванна кімната, стінового в кімнатах, відкоси;
- Малярні роботи – ґрунтовка, шпаклівка стін, склохолст, оздоблення відкосів, фарбування;
- Підлога, плінтус – промисловий ліноліум у ванній кімнаті, ламінат 32 клас, плінтус дерев’яний;
- Двері – двері міжкімнатні, коробка, лиштва, встановлення;
- Стеля – натяжні стелі, білі, матові.
Додатково можете замовити у нас:
- Вентиляція – стінові рекуператори, 3 шт., встановлення та підключення;
- Корпусні меблі: кухонна стінка, шафа-купе;
- Мийка кухонна (нерж), душова кабіна 80*80, унітаз Kolo, вмивальник, пральна машина Elenberg, бойлер Ariston. Встановлення та підключення: унітаз, мийка, душова, пральна машина, бойлер.
НЕ ВРАХОВАНО – Доставка, фундамент, зовнішні комунікації, послуги автокрану, основа тераси, навіс над терасою.
Новий проєкт модульного будинку загальною площею 28 м2. Будинок за цим проєктом відмінно підійде для постійного проживання пари без дітей або для однієї людини. Також чудово послужить, як дача для тимчасового проведення часу будь-якої пори року, або як додатковий гостьовий будиночок при вашому котеджі.
Через великі панорамні вікна приємно буде спостерігати свою ділянку, чи то квітучий сад або газон. А також будиночок усередині завжди буде чудово освітлений.
Важливо зазначити, що будинок за цим проєктом можна звести як мобільний будинок – це дозволить, за необхідності, перевозити його на нове місце.
Опір теплопередачі стін R=4.05 м²K/Вт; покрівлі R=5.5 м²K/Вт, що відповідає нормам ДБН В.2.6-31:2016. Будівля відноситься до V ступеню вогнестійкості, ДБН В2.2-15:2019.
Планування модуля СІП-будинку “Модуль I – 28”

Телефон: