Проект Art Of Future – 238
| Загальна площа | 238 |
| Тераса | Есть |
Проект дома из СИП панелей Art Of Future – 238 кв. м
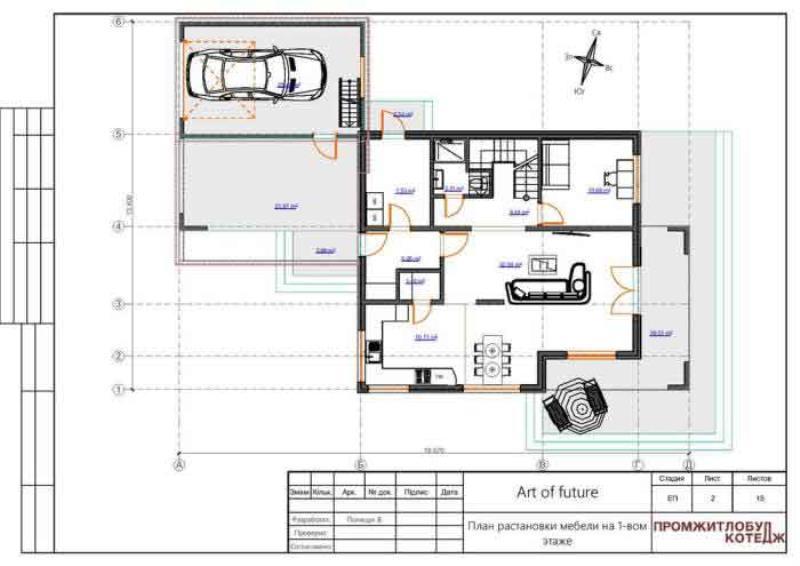
План первого этажа

План мансарды

BAUEN HAUS - производственно-строительная компания.
ул. Васильковская, 28 03118 Киев,
BAUEN HAUS 
Телефон:
+38 (044) 334 31 84, DIRECTOR:
+38 (044) 232 48 84, VIBER:
+38 (050) 442 99 77, Электронная почта:
info@bauenhaus.ua