Проект A-frame – 89
| Загальна площа | 89 м2 |
| Кількість кімнат | 2 |
Проєкт A-frame – 89 – це компактний двоповерховий СІП-будинок з мансардою, у якому поєднано сучасну архітектуру та практичне планування. Будівля має виразну форму з похилим дахом, який переходить у стіни, завдяки чому будинок виглядає сучасно та навіть незвично.
Загальна площа будинку становить 89 м², що дозволяє організувати повноцінний простір для проживання або відпочинку за містом.
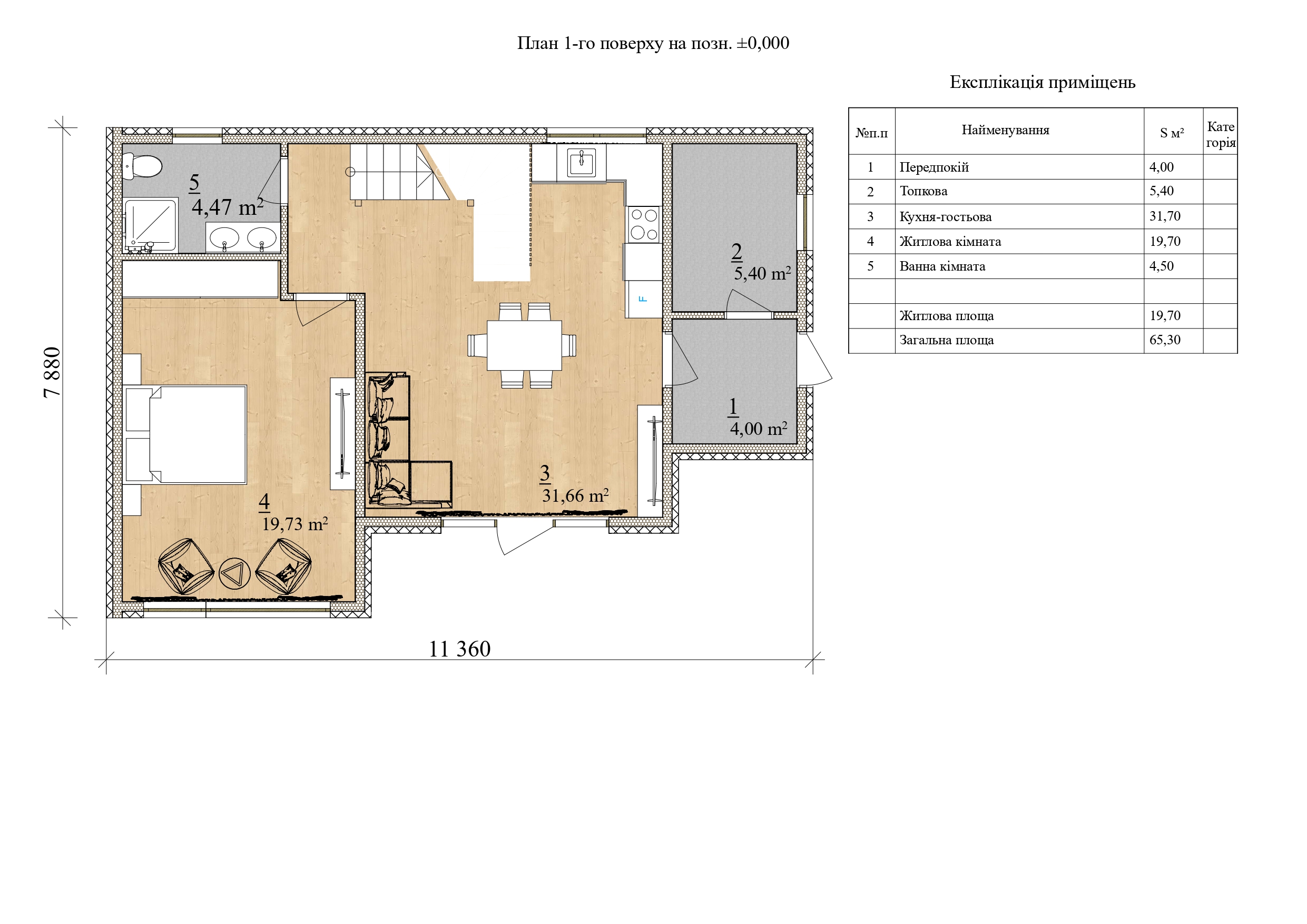
Перший поверх сплановано як основну житлову зону. Тут розташована простора кухня-вітальня площею понад 31 м². З вітальні передбачено вихід на терасу.
Також на першому поверсі знаходиться окрема житлова кімната площею майже 20 м², яку можна використовувати як спальню або гостьову кімнату. Поруч розташовано ванну кімнату, передпокій та топкову, що дозволяє розмістити інженерне обладнання окремо від житлових приміщень.
На другому рівні знаходиться мансардний поверх, де заплановано простору майстер-спальню площею близько 20 м² з розташованою поруч власною ванною кімнатою.
Архітектура будинку підкреслюється балконом на другому рівні, а також великими фасадними площинами скління. Завдяки формі A-frame дах одночасно виконує функцію фасаду, що створює характерний вигляд будинку та зменшує кількість конструктивних елементів.
Проєкт A-frame – 89 підходить як для постійного проживання невеликої сім’ї, так і для заміського будинку або будинку для відпочинку. Компактні габарити будівлі дозволяють розмістити її навіть на відносно невеликій ділянці, зберігаючи достатньо простору для тераси та благоустрою території.
Планування СІП-будинку “A-frame – 89 м2”
Перший поверх

Мансардний поверх

Телефон: