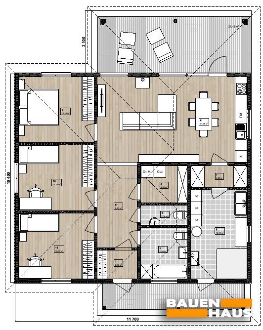
Проект Сніжноцвіт – 122
| Загальна площа | 122 кв. м |
| Тераса | Есть, 21 кв. м |
| Кількість кімнат | 4 |
Проект компактного одноповерхового СІП будинку з терасою. Загальна площа будинку за проектом – 122 м2, підходить для постійного проживання сім’ї з двома дітьми.
Планування СІП-панельного будинку Сніжноцвіт – 122 м2

Телефон: