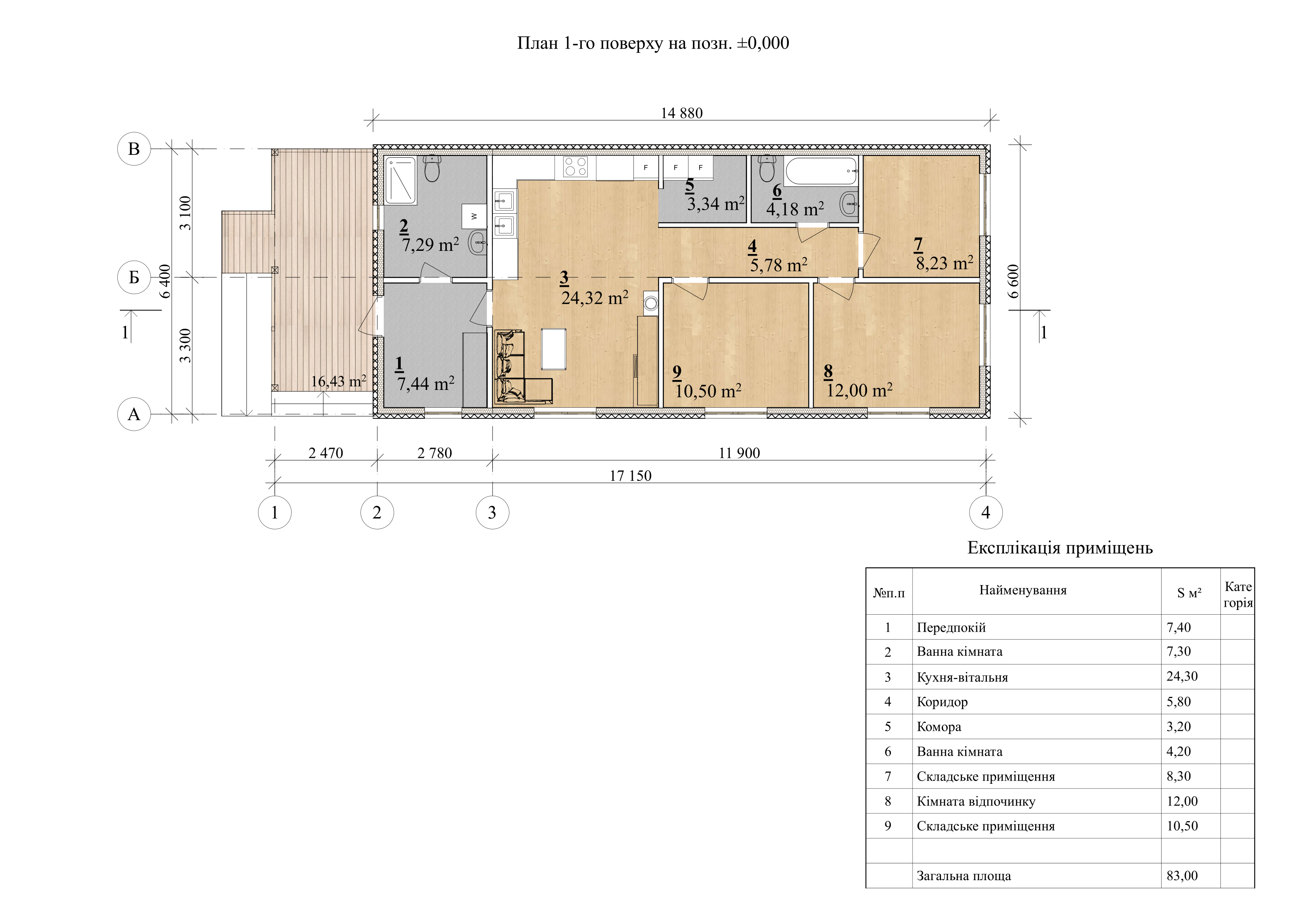
Проект Лаванд – 83
| Загальна площа | 83 м2 |
| Тераса | 16 м2 |
Проєкт «Лаванд» – це практичне рішення для невеликої сім’ї чи дачного відпочинку. Будинок має загальну площу 83 м² та продумане планування, яке дозволяє максимально ефективно використовувати простір.
У плануванні передбачено простору кухню-вітальню площею 24 м² з виходом на терасу, дві ванні кімнати, кімнату відпочинку, зручний коридор і господарські приміщення для зберігання речей. Завдяки продуманому зонуванню тут можна комфортно жити протягом усього року.
Фасад виконаний у спокійному сучасному стилі з акцентом на дерев’яні елементи тераси, що гармонійно поєднується з природним оточенням. Компактні габарити та раціональне планування роблять цей будинок вигідним вибором для тих, хто цінує простоту та функціональність.
Планування СІП-будинку “Лаванд – 83 м2”

Телефон: