Проект Форінт – 108
| Загальна площа | 108 м2 |
| Тераса | 20 м2 |
Проєкт двоповерхового будинку з мансардою загальною площею 108 м² створений для тих, хто цінує функціональність у поєднанні з простотою та сучасним стилем. Компактні розміри будівлі дозволяють ефективно використати ділянку, а продумане планування забезпечує зручний простір для життя родини.
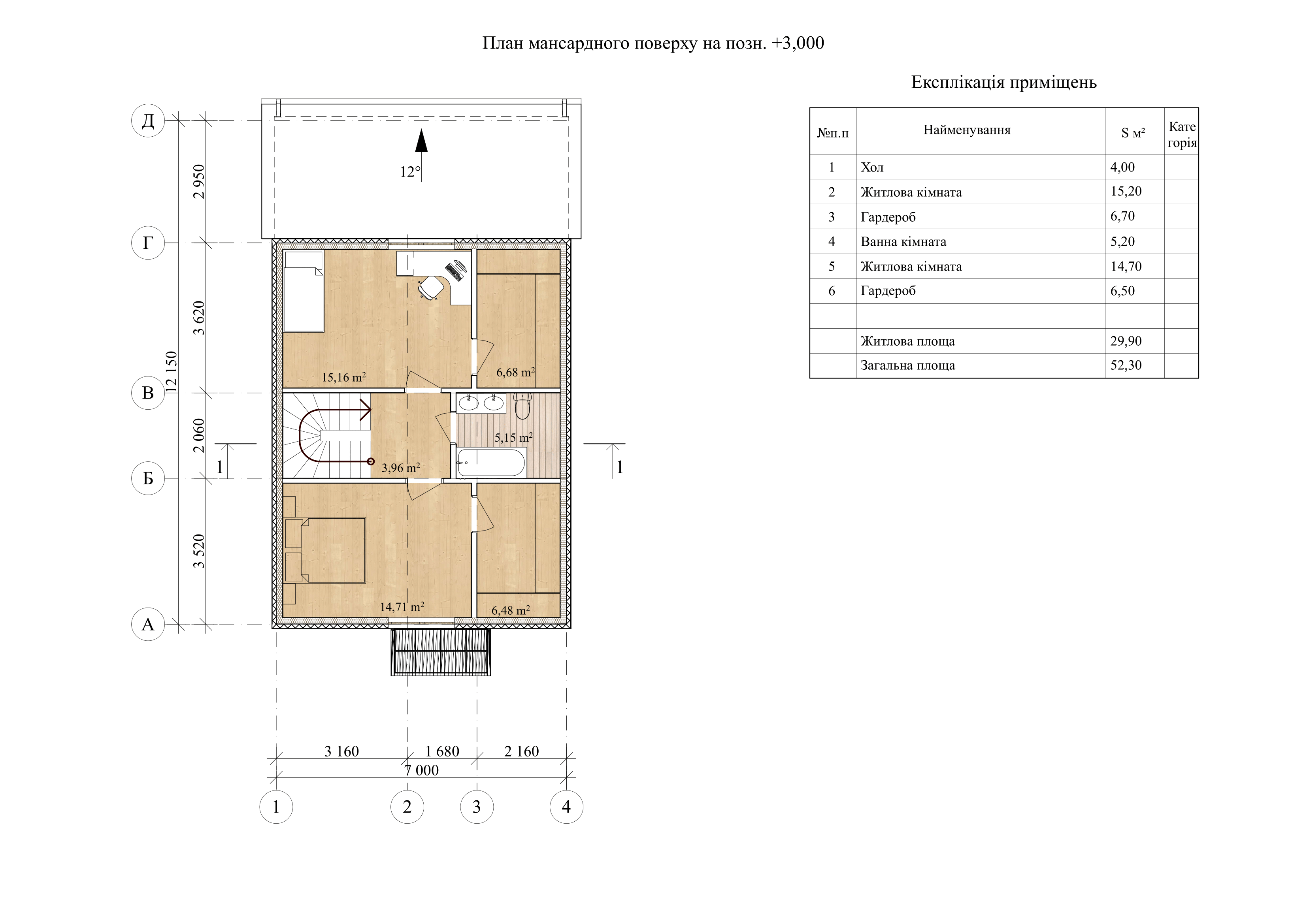
На першому поверсі передбачено простору кухню-вітальню (23,5 м²) з виходом на терасу, окрему кімнату, яка може стати кабінетом або гостьовою, ванну кімнату, топкову та передпокій. Зручні сходи ведуть на мансардний поверх, де розташовані дві спальні, гардеробні кімнати та ще одна ванна.
Завдяки продуманому зонуванню будинок підходить як для постійного проживання, так і для заміського відпочинку. Лаконічна архітектура, світлий фасад і простора тераса роблять цей проєкт практичним рішенням для сімей, які прагнуть мати власний дім з сучасним плануванням.
Планування СІП-будинку “Форінт – 108 м2”
Перший поверх

Другий поверх

Телефон: