Проект АртСпейс Таунхаус – 231
| Загальна площа | 231 кв. м |
Цей проєкт був створений з метою надати майбутнім власникам вишуканий та функціональний простір для життя або відпочинку. Таунхаус складається з трьох частин, які забезпечують приватність та комфорт для кожної родини. Великі панорамні вікна заповнюють приміщення природним світлом, надаючи відчуття простору та з’єднання з навколишнім середовищем.
Стиль барнхаусів, відомий своїми витонченими лініями та зовнішньою естетикою, відображається в унікальному дизайні будинку. Комбінація матеріалів оздоблення, таких як дерево та метал, створює неповторний образ, де традиційність зустрічається зі сучасністю.
Наш архітектор детально пропрацював кожен аспект проєкту, враховуючи бажання та потреби майбутніх власників. Він вдало поєднав функціональність з елегантністю, створивши затишний та комфортний простір, де можна насолоджуватися життям і одночасно насичуватися відчуттям прекрасності довкілля.
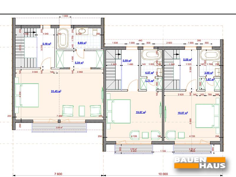
Планування будинку “АртСпейс Таунхаус – 231”
Перший поверх
Другий поверх


Телефон: